3852 Jingellic Road, Lankeys Creek NSW 2644
Property Details
3
2
House
Description
Property Details: • Type: House
• Bedrooms: 3 • Bathrooms: 2
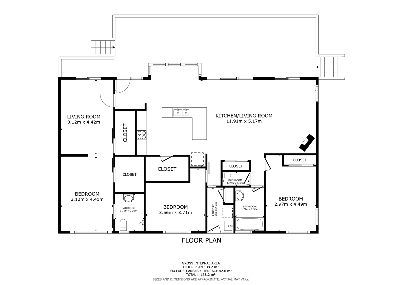
Description: Located in the sought-after Lankeys Creek region, Brackenridge offers a peaceful lifestyle on 100 acres with sweeping valley views and a strong connection to nature. The land comprises approximately 30 acres of cleared country, with the balance natural bushland enhanced by established native, deciduous and fruit trees, creating a private, park-like setting rich in birdlife and seasonal colour. Positioned to take full advantage of its elevated outlook, the well-presented three-bedroom home features light-filled open plan living with timber cathedral ceilings, a well-appointed kitchen with walk-in pantry, and seamless access to outdoor entertaining. All bedrooms include built-in robes, with ensuite and walk-in robe to the main, plus the flexibility of a fourth bedroom or study. Comfort is ensured with wood heating, split-system air-conditioning and solar hot water, while water is well supported by 60,000 litre rainwater, a spring-fed well and two dams. Improvements include a lock-up shed with carport, large workshop and an insulated studio with power and air-conditioning, ideal for additional accommodation or workspace. Conveniently located between Holbrook and Jingellic & Holbrook, close proximity to larger centres of Albury/Wodonga and Wagga Wagga, this is a rare opportunity to secure a well-established lifestyle property in a tightly held rural setting.
Location
Address
3852 Jingellic Road, Lankeys Creek NSW 2644
City
Lankeys Creek
Features and Finishes
None
Legal Notice
Our comprehensive database is populated by our meticulous research and analysis of public data. MirrorRealEstate strives for accuracy and we make every effort to verify the information. However, MirrorRealEstate is not liable for the use or misuse of the site's information. The information displayed on MirrorRealEstate.com is for reference only.