388 Old Huron Road 17D
Property Details
1
1
Tenant
Description
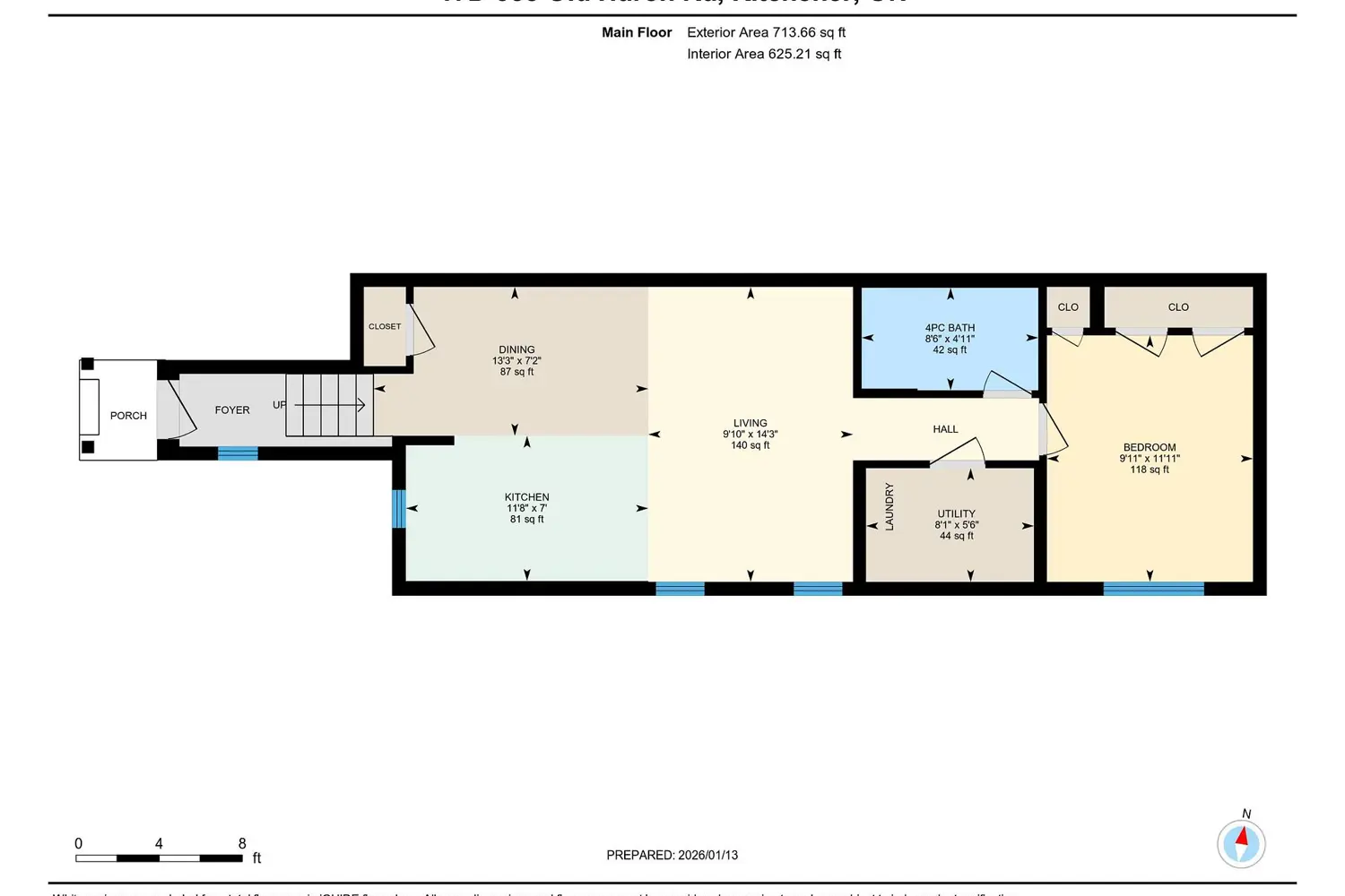
As we enter the new year I know that there are many people that have a new home/condo purchase on their wish list for 2026. Ready to tick that box off your list? This entry level affordable condo in the Huron Park area of Kitchener could be the one! At 753 square feet, this 1 bedroom, 1 bathroom condo was just built in 2016 and is in move in condition. The open concept main floor allows one to use the space to suit your lifestyle. There is ample room for a dining table, kitchen island and plenty of living room furniture to orchestrate around the TV. There is plenty of cabinetry, SS appliances and quartz countertops in the kitchen. There are plenty of look out sized windows, 1 parking spot just outside your front door and a storage/laundry/utility room. The main bathroom is a comfortable size and has a quartz vanity. The king sized primary bedroom has a nice window and a wall of closets on the one end of the room. The front hall closet includes crawl space storage. To top things off you have your own private fenced patio just outside your front door. The complex has low condo fees, a playground area, plenty of visitors parking and is close to schools, shopping, trails and transit. Please take a moment to view the floor plans, 360 degree photography and the marketing video.
Location
Address
388 Old Huron Road 17D
City
Kitchener
Features and Finishes
None
Legal Notice
Our comprehensive database is populated by our meticulous research and analysis of public data. MirrorRealEstate strives for accuracy and we make every effort to verify the information. However, MirrorRealEstate is not liable for the use or misuse of the site's information. The information displayed on MirrorRealEstate.com is for reference only.