38A Carlyle Close, Dapto NSW 2530
Property Details
Vacant Land
Description
Property Details: • Type: Vacant Land
• Bedrooms: 0 • Bathrooms: 0
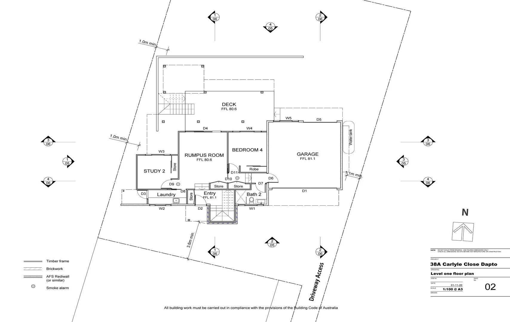
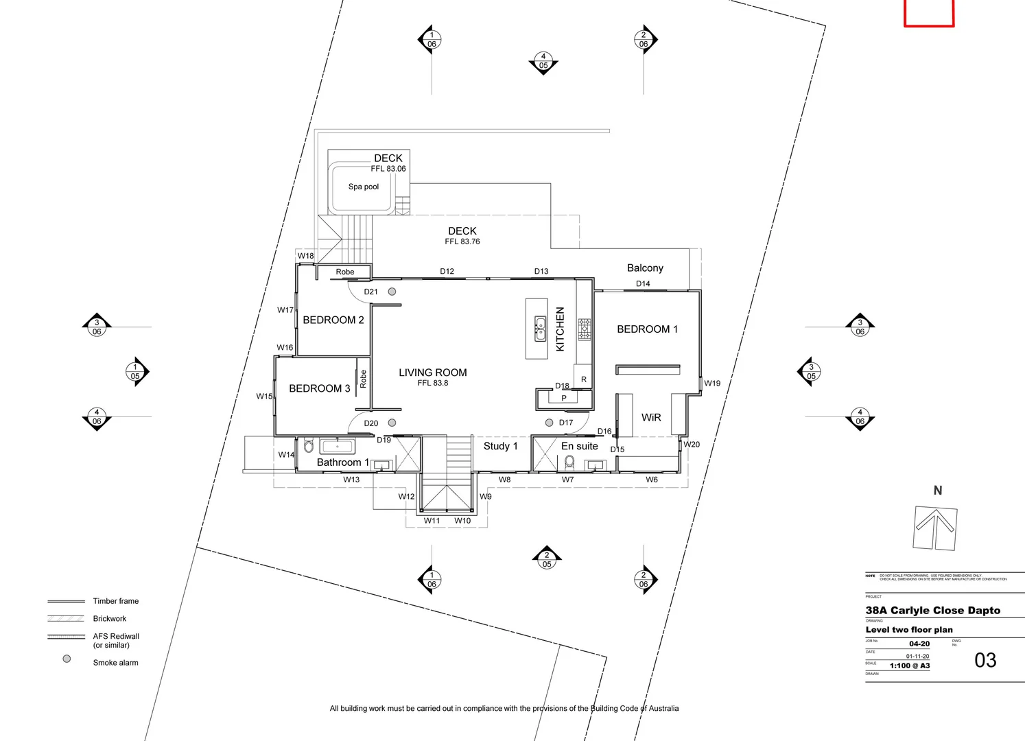
Description: The phone enquiry code for this property is - 5330 *** REDUCED TO SELL *** Lot 3 615m2 vacant block of land ready to build on with Draft Design Plans This large 1501.6m2 residential block has recently been subdivided into two vacant blocks of land Lot 1 887m2 38 Carlyle Close and Lot 3 615m2 38A Carlyle Close, Dapto. There is a shared battle-lax driveway to gain access to Lot 3 (38A) and Lot 4 (neighbouring property). All infrastructures such as the battle-lax driveway with parking bays, underground works such as NBN, plumbing, electrical, sewer and water requirements, have been completed so all the hard work has been done, leaving you to focus on designing your new home on a block of land that's ready to go. This lot has a north-facing backyard and boasts a private location in the popular family-oriented suburb of Dapto Heights. It is the ideal canvas for your luxurious dream home in a whisper-quiet cul-de-sac street that is well-sort after, surrounded by prestige quality-built homes. With stunning escarpment and Lake Illawarra water views, within walking distance of playing fields, school and public bus service that operates from the end of the street, this block is a must-see! 38A Carlyle Close is just 15 minutes from Wollongong's CBD, and a little over 5 minutes' drive to nearby shops, schools, medical services, and recreational amenities. Easy access to the M1 for north or south commuting. It means you'll be living in a suburb dominated by the breathtaking natural environment while at the same time being close to all the modern conveniences you can't live without. With views you'll never tire of, we invite you to come see for yourself! Lot 3 38A has drafted architecturally custom-designed house plans ready to help assist with your house design, or you can opt to design your own home as an owner builder or source your own builder. The choice is yours. Expressions of interest are now welcomed. Disclaimer: SaleByHomeOwner.com.au is a licensed, commission-free agency offering For Sale By Owner (FSBO) services to Australian homeowners. While every effort has been made to ensure the accuracy of the information in this advertisement, prospective buyers or tenants should take necessary steps to verify any relevant details to their satisfaction.
Location
Address
38A Carlyle Close, Dapto NSW 2530
City
Dapto
Features and Finishes
None
Legal Notice
Our comprehensive database is populated by our meticulous research and analysis of public data. MirrorRealEstate strives for accuracy and we make every effort to verify the information. However, MirrorRealEstate is not liable for the use or misuse of the site's information. The information displayed on MirrorRealEstate.com is for reference only.