39 CHENOWETH DRIVE, Blacks Beach QLD 4740
Property Details
3
3
House
Description
Property Details: • Type: House
• Bedrooms: 3 • Bathrooms: 3
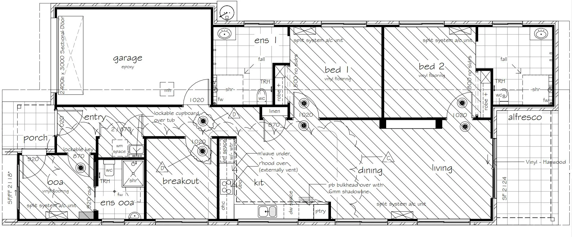
Description: To enquire, please email or call 1300 815 051 and enter code 4755 Ideal for self-managed Super Fund and single contract investors who don't want to build, be quick to buy this rare opportunity. The brand new lowset home, is comprised of 2 SDA 'Robust' bedrooms, plus an OOA room, and a separate Breakout room. Currently occupied by an SDA Participant for approx $98,000 per year! This is a great opportunity for an astute investor looking to buy a fully occupied SDA home that is already built, with SDA participants in place. SMSF and single contract investors who don't want to build, be quick to buy this rare opportunity. The home is 180m2 in size, positioned on 432m2 lot, close to local shops, and doctors, and just 15 minutes to the hospital and the heart of Mackay. * Generous living and dining areas, featuring a large kitchen designed to be easily accessible. * The property is designed with functionality in mind, with wide corridors, special, open bathrooms, and plenty of personal storage. * Outside, residents can unwind in the peace and quiet of the outdoor alfresco gathering space. * Bedrooms feature private ensuites, air conditioning, ceiling fans, built-in robes, and Wall mounted flat screen televisions. - Under the Robust model, the potential rent is up to $98,837 per SDA room, per year. - Under the Improved Liveability model, the potential rent is up to $88,958 per SDA room, per year. SDA funding varies depending on specifics within the individual SDA Participants NDIS plan, and is paid on a per room basis. We are the SDA provider, selling this SDA property for one of our investors. If you want the real facts about investing in the NDIS, speak directly to us. We develop and manage many SDA properties throughout QLD. All quoted returns are based on the Specialist Disability Accommodation SDA Price Calculator 2025 - 2026. The SDA Price Calculator is provided for information only. The Commonwealth and the National Disability Insurance Agency, and Horizon Property Alliance, accept no liability to any person for any loss, damage, cost or expense suffered as a result of any use of or reliance on any of the information. The information in this document may change, is not advice, and should not be relied upon for any action or failure to act. The Commonwealth and the Agency accept no responsibility for the accuracy or completeness of the material contained in this SDA Price Calculator. To enquire, please email or call 1300 815 051 and enter code 4755
Location
Address
39 CHENOWETH DRIVE, Blacks Beach QLD 4740
City
Blacks Beach
Features and Finishes
None
Legal Notice
Our comprehensive database is populated by our meticulous research and analysis of public data. MirrorRealEstate strives for accuracy and we make every effort to verify the information. However, MirrorRealEstate is not liable for the use or misuse of the site's information. The information displayed on MirrorRealEstate.com is for reference only.