39 East Avenue, Millswood SA 5034
Property Details
5
1
House
Description
Property Details: • Type: House
• Bedrooms: 5 • Bathrooms: 1
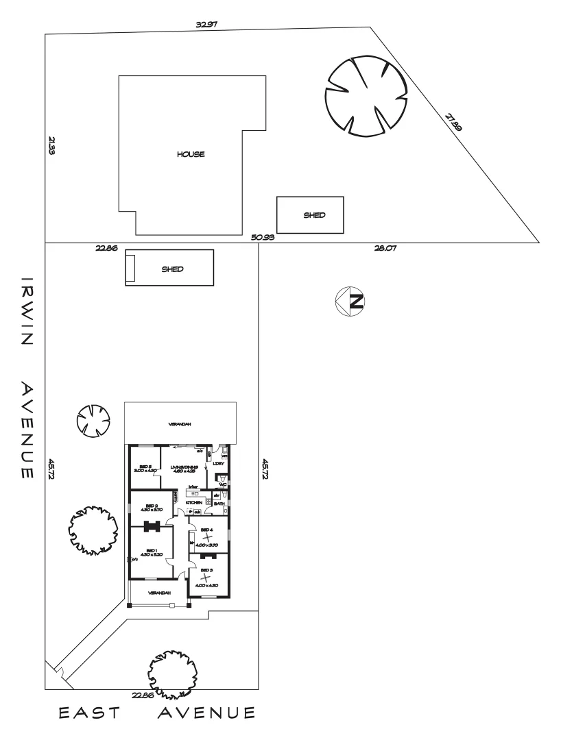
Description: Perfectly located in the prime City-South residential precinct, within walking distance to Goodwood Oval, playground, open space and tennis courts, this corner allotment present a rare and unique opportunity for investors or developers to secure a valuable landholding in a one-off, rare release. The allotments will be offered as a whole, or for individual sale. 39 East Avenue is a sandstone fronted bungalow, currently rented and offers an opportunity for investors to secure, hold and enjoy the steady income stream. The home consists of 5 bedrooms and is presently configured as student accommodation. The residence is in fair condition and is sited on a generous 1045.45sqm (approx.) corner allotment. 7 Irwin Avenue adjoins the rear of 39 East Avenue & is now Sold!! With an allotment size of 1,045sqm (Approx.) , this generous corner allotment provides a very rare and desirable opportunity for shrewd investors and entrepreneurs to secure a significant landholding in a very desirable residential suburb. Get creative and do your maths, these blocks will not last long and offer a rare opportunity to build a dream home, or invest and develop your future. 39 East Avenue: * Corner allotment of 1045.45sqm (Approx.) * Frontage of 22.86 m * Depth of 45.72 m * Sandstone fronted, solid brick bungalow of 6 main rooms * Currently configured as student accommodation Both sited on a fabulous residential precinct and within walking distance to Goodwood Oval and local open space and sporting areas. Quality local shopping can be found at Unley Shopping Centre, Mitcham Shopping Centre and Cumberland Park Shopping Centre. Public transport to the city is a short walk to Clarence Park Railway Station and bus routes are available at your doorstep on East Avenue. Nearby unzoned primary schools in the area include Goodwood Primary School, Richmond Primary School and Edwardstown Primary School. Enjoy desirable secondary school zoning to Unley High School. Quality private schooling can be found nearby at Cabra Dominican College, Walford School, Concordia College, Mercedes College & Immanuel College. Zoning information is obtained from www.education.sa.gov.au Purchasers are responsible for ensuring by independent verification its accuracy, currency or completeness. Ray White Norwood are taking preventive measures for the health and safety of its clients and buyers entering any one of our properties. Please note that social distancing will be required at this open inspection. Property Details - 7 Irwin Avenue, Millswood Council | Unley Zone | EN - Established Neighbourhood\ Land | 904sqm (Approx.) House | TBCsqm(Approx.) Built | 1925 Council Rates | $TBC pa Water | $TBC pq ESL | $TBC pq Property Details: Council | Unley Zone | EN - Established Neighbourhood\\ Land | 1045.45sqm(Approx.) House | 216sqm(Approx.) Built | 1925 Council Rates | $TBC pa Water | $TBC pq ESL | $TBC pq
Location
Address
39 East Avenue, Millswood SA 5034
City
Millswood
Features and Finishes
None
Legal Notice
Our comprehensive database is populated by our meticulous research and analysis of public data. MirrorRealEstate strives for accuracy and we make every effort to verify the information. However, MirrorRealEstate is not liable for the use or misuse of the site's information. The information displayed on MirrorRealEstate.com is for reference only.