39 Trail Rider Dr
CAD 1,650,000
For Sale
MLS: 40669409
Property Details
Bedrooms
4
Bathrooms
4
Property Type
Single Family Residence
Description
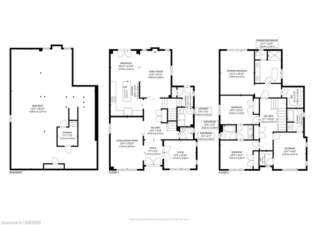
MLS#: 40669409 Type: Single Family Residence Living Space: 3036 sqft Year Built: 2018 Parking Spaces: 5 Garage Spaces: 2 Basement: Full, Unfinished Swimming Pool: No Lot Size: 50.85 x 98.43 Annual Taxes: $9701.12
Location
Address
39 Trail Rider Dr
City
Brampton
Legal Notice
Our comprehensive database is populated by our meticulous research and analysis of public data. MirrorRealEstate strives for accuracy and we make every effort to verify the information. However, MirrorRealEstate is not liable for the use or misuse of the site's information. The information displayed on MirrorRealEstate.com is for reference only.