10301034 Ohio Avenue, Richmond, CA 94804
Property Details
None
None
None
Description
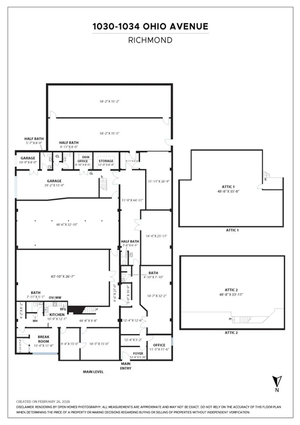
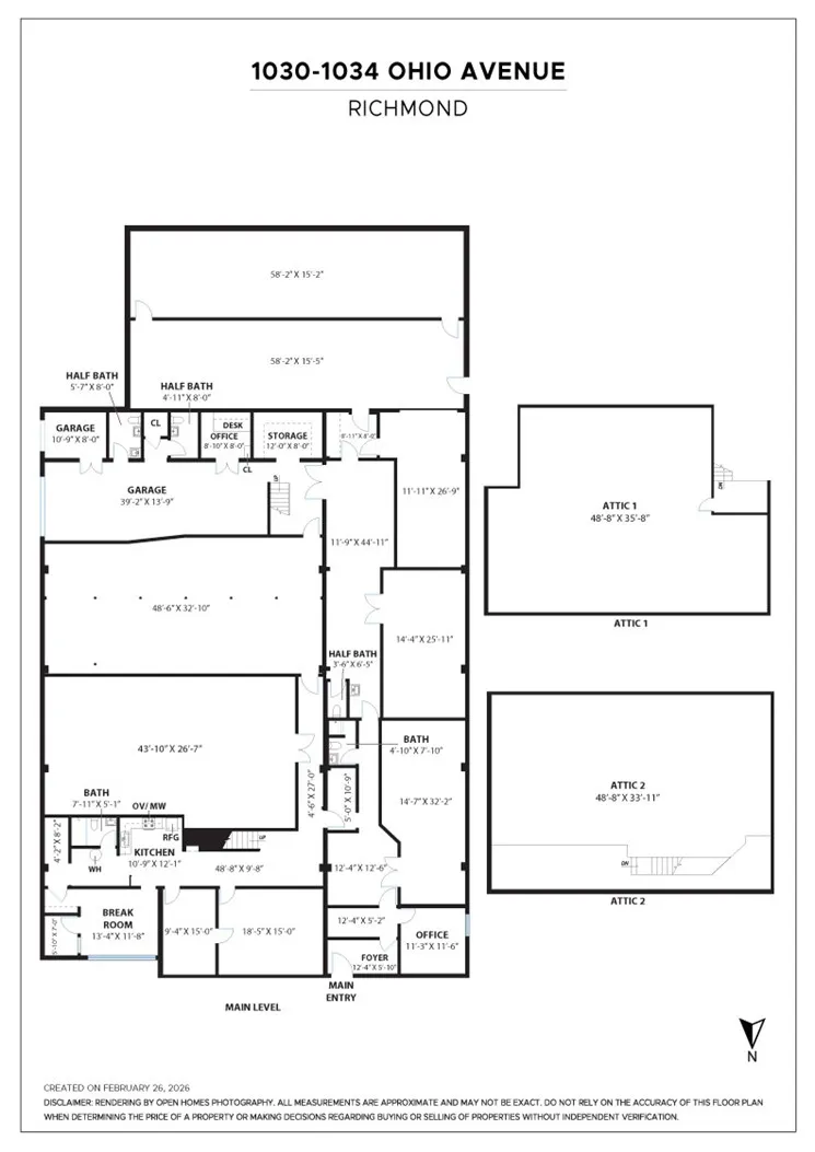
Located in Richmond's Green Zone, this 7,425 sq ft commercial warehouse is a well equipped and versatile industrial property well-suited for operators, investors, or owner-users. The main level features a welcoming entry foyer, multiple private offices, a break room, and a full kitchen - supporting both client-facing and day-to-day operational needs. The building is equipped with three half baths and two full baths, accommodating a sizable workforce. At the core of the property are expansive warehouse and dual garage bays, ideal for cultivation, manufacturing, or distribution. Two upper-level attic spaces provide additional square footage for storage or potential conversion. Situated on Ohio Avenue with convenient access to Interstate 580, the property connects operators to the broader East Bay, San Francisco, and beyond.
PROPERTY DETAILS: Square Feet: 7425
LISTING AGENT: Agent: Mason Zhao | Office: Pinnacle Real Estate Group | Phone: 6262623670 | Email: [email protected]
LISTING INFORMATION: MLS#: AR26019935 | Status: FOR SALE
Location
Address
10301034 Ohio Avenue
City
Richmond
Features and Finishes
None
Legal Notice
Our comprehensive database is populated by our meticulous research and analysis of public data. MirrorRealEstate strives for accuracy and we make every effort to verify the information. However, MirrorRealEstate is not liable for the use or misuse of the site's information. The information displayed on MirrorRealEstate.com is for reference only.