520 Robinson Drive, Smiths Station, AL 36877

USD 200000 For Sale
MLS: E102715

Property Details

Bathrooms

2

Description

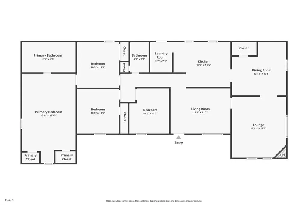
This single-story home offers 4 bedrooms and 2 baths with 1,812 square feet and sits on a quarter-acre lot with convenient access to local amenities, located just down the street from the Smiths Station Sports Complex. The interior includes a garden tub, a double vanity in the primary bath, a gas brick fireplace in the den, and a brick entrance at the drive. In addition to the primary homesite, the neighboring quarter-acre lot is included in the price. The property does have known condition issues, including foundation problems and a septic system that needs replacement. The home is priced accordingly and is being sold as-is, suited for a cash investor, contractor, or buyer prepared to take on the necessary repairs. Seller is motivated!

PROPERTY DETAILS: Square Feet: 1812 | Bathrooms: 2

INTERIOR FEATURES: • Appliances: Gas Cooktop, Gas Oven, Refrigerator • Flooring: Ceramic Tile, Laminate, Carpet • Cooling: Central Air, Ceiling Fan(s) • Heating: Forced Air, Central • Common Walls: No Common Walls • Basement: None • Fireplaces: 1 Living Room • Additional Interior Features: Walk-In Closet(s)

EXTERIOR FEATURES: • Parking: 2 Parking Spaces, Driveway. • Exterior: Brick • Patio: Covered, Front Porch • Roof: Composition • Pool Description: None • Spa: None • Lot View: Creek/Stream • Lot Dimensions: 17700 • Body of Water: None • Fence: Brick • Additional Exterior/Lot Features: Front Porch Front Yard, Level

LISTING AGENT: Agent: Akira Grace | Office: Real Broker LLC | Phone: 3526829712 | Email: [email protected]

LISTING INFORMATION: MLS#: E102715 | Status: FOR SALE

Location

Address

520 Robinson Drive

City

Smiths Station

Features and Finishes

Interior Features:

• Appliances: Gas Cooktop, Gas Oven, Refrigerator

• Flooring: Ceramic Tile, Laminate, Carpet

• Cooling: Central Air, Ceiling Fan(s)

• Heating: Forced Air, Central

• Common Walls: No Common Walls

• Basement: None

• Fireplaces: 1 Living Room

• Additional Interior Features: Walk-In Closet(s)

Exterior Features:

• Parking: 2 Parking Spaces, Driveway.

• Exterior: Brick

• Patio: Covered, Front Porch

• Roof: Composition

• Pool Description: None

• Spa: None

• Lot View: Creek/Stream

• Lot Dimensions: 17700

• Body of Water: None

• Fence: Brick

• Additional Exterior/Lot Features: Front Porch Front Yard, Level

Legal Notice

Our comprehensive database is populated by our meticulous research and analysis of public data. MirrorRealEstate strives for accuracy and we make every effort to verify the information. However, MirrorRealEstate is not liable for the use or misuse of the site's information. The information displayed on MirrorRealEstate.com is for reference only.

Real Estate Broker
Akira Grace
Brokerage
Real Broker LLC
Likes

0

Views

13

This website uses cookies to ensure you get the best experience. Learn more