4/58 Charles Street, Midland WA 6056
Property Details
2
1
House
Description
Property Details: • Type: House
• Bedrooms: 2 • Bathrooms: 1
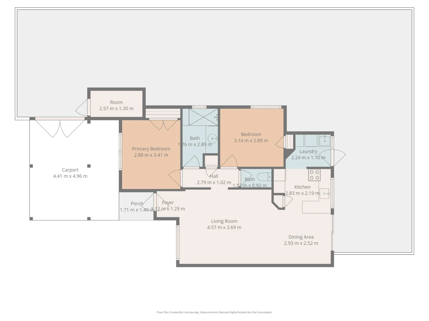
Description: Set at the rear of a complex of 4, this beautifully presented 2 bedroom Villa is move in ready, offering comfort, privacy, and effortless living. This property combines modern interiors with inviting outdoor spaces. This villa stands out for its peaceful ambience, secure setting, and beautifully maintained outdoor spaces. Whether relaxing under the pergola, entertaining friends, or enjoying a quiet morning coffee surrounded by greenery, the home offers a rare sense of tranquillity-while still being moments from Midland's major shopping, dining, and transport hubs. Perfect for downsizers, first home buyers, investors, or anyone seeking a low maintenance lifestyle with extra parking and garden space. Although this property has NO Strata fees applicable, the property is Strata titled, with a shared Building insurance policy in place, insuring all Villa's in the complex, as a cost of just $715.22 per Villa (ANNUALLY)! Property Highlights • Air-conditioned, open-plan living with a spacious lounge and dining area, neutral tones with a garden outlook. • Kitchen featuring generous bench space with a bright, practical layout, with ample storage, or room to fit a double - sized fridge. • 2 well appointed bedrooms, both with built-in-robes. • Bathroom with a large vanity. • Separate laundry with built-in cabinetry and external access. • Secure gated access to the rear of the property - Ideal secure parking for a boat, trailer or caravan. • Multiple outdoor living zones, including: • Tranquil patio area off the dining room - perfect for entertaining. • A wrap-around landscaped rear courtyard with established gardens and shaded seating areas. • Powered shed/storeroom • Strata Fees (Strata Building insurance) $715.22 per Villa (ANNUALLY) Lifestyle Appeal This villa stands out for its peaceful ambience, secure setting, and beautifully maintained outdoor spaces. Whether relaxing under the pergola, entertaining friends, or enjoying a quiet morning coffee surrounded by greenery, the home offers a rare sense of tranquillity-while still being moments from Midland's major shopping, dining, and transport hubs. Nearby Amenities (Approximate Driving Distances) Midland Gate Shopping Centre - ~1.2 km Centrepoint Midland - ~1.4 km Cale Street dining precinct - ~1.3 km Ace Cinemas Midland Gate - ~1.2 km Swan Valley wineries & attractions - ~5-10 min (varies by venue) Midland Train Station - ~1.4 km Nearby Schools (Approximate Driving Distances) St Brigid's Primary School (Catholic) - approx. 1.6 km Helena River Steiner School (Primary) - approx. 1.8 km Woodbridge Primary School - approx. 2.0 km Governor Stirling Senior High School - approx. 2.3 km La Salle College (Catholic Secondary) - approx. 2.8 km Guildford Grammar School (K-12, Independent) - approx. 3.5 km For more information or to arrange to view this property, contact your local real estate agent in at Raine & Horne Midland, Michael Pileggi on 0417 986 899. Disclaimer All information provided has been prepared to the best of our knowledge; however, neither the owner nor the selling agent makes any representation or warranty as to the accuracy, reliability, or completeness of the information contained in this advertisement. Interested parties are advised to make their own enquiries and satisfy themselves on all details, measurements, distances, and features of the property. The owner and selling agent accept no liability for any errors, omissions, or misstatements, whether negligent or otherwise.
Location
Address
4/58 Charles Street, Midland WA 6056
City
Midland
Features and Finishes
None
Legal Notice
Our comprehensive database is populated by our meticulous research and analysis of public data. MirrorRealEstate strives for accuracy and we make every effort to verify the information. However, MirrorRealEstate is not liable for the use or misuse of the site's information. The information displayed on MirrorRealEstate.com is for reference only.