4 Bed Flat, St Augustines Parade, BS1, N1 7GU
Property Details
4
2
Flat
Description
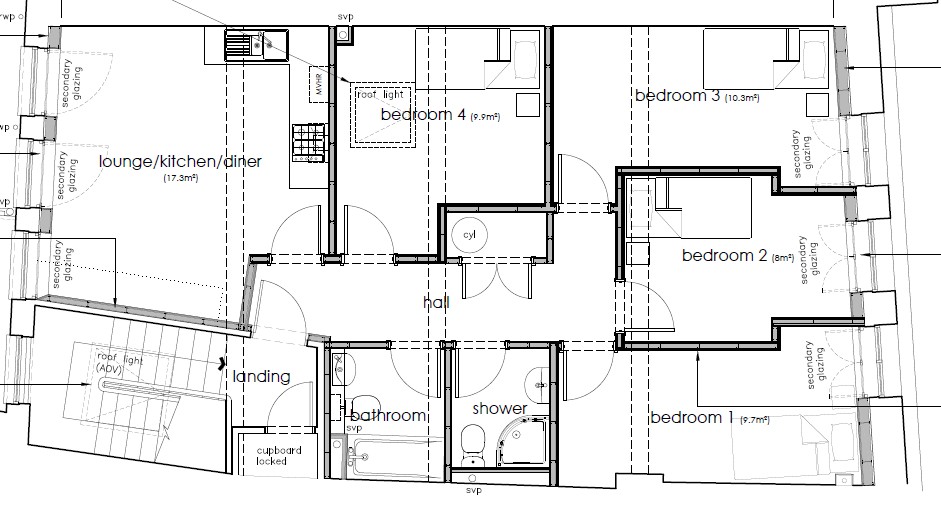
***BRAND NEW 4 BED FLAT***INTERNET INCLUDED***RENT: £750 per person per month RENT: £9000 per person per tenancyTENANCY DATES: 9th JULY to 29th JUNEWEEKLY RENT: £173We are excited to be marketing a brand new 4 bedroom furnished student property that is currently under refurbishment ready for the 26/27 academic year. The property is situated on St Augustines Parade close to the University of Bristol, Park Street, the City Centre and the harbourside area. The flat will comprise of 4 bedrooms (each with a 4ft bed and mattress, wardrobe with drawers under, a desk and desk chair), a kitchen lounge (with fridge freezer, oven, hob, washer dryer, sofa, dining table or breakfast bar and a TV), and 2 shower room each with shower cubicle, basin and WC. Room sizes and layout can be seen in the attached floorplan. There is also a bin and bike store within the building. Internet will be included in the rent. This property is on the third floor and one of the bedrooms has a skylight window. PLEASE NOTE: Due to the renovation works, we are unable to conduct viewings, and all photos attached are an example of the finish of the flat front another recent renovation, and not photos of the flat itself. Please contact us for further details. Bills - Not included unless stated above (However third party all-inclusive bill options are available for an additional cost).
--- Property Details --- Type: Flat Bedrooms: 4 Bathrooms: 2 Rent: £3,000 per month Deposit: £3,000 Furnished: Furnished EPC Rating: C Available From: 09 July, 2026 Minimum Tenancy: 12 Months Bills Included: Broadband View Offers Postcode: N1 7GU Listed By: OpenRent Landlord
Location
Address
4 Bed Flat, St Augustines Parade, BS1, N1 7GU
City
N1 7GU
Features and Finishes
Furnished, EPC: C, Available: 09 July, 2026, Min tenancy: 12 Months, Bills: Broadband View Offers
Legal Notice
Our comprehensive database is populated by our meticulous research and analysis of public data. MirrorRealEstate strives for accuracy and we make every effort to verify the information. However, MirrorRealEstate is not liable for the use or misuse of the site's information. The information displayed on MirrorRealEstate.com is for reference only.