4 Bed Maisonette, Mansionhouse Road, EH9, N1 7GU
Property Details
4
2
House
Description
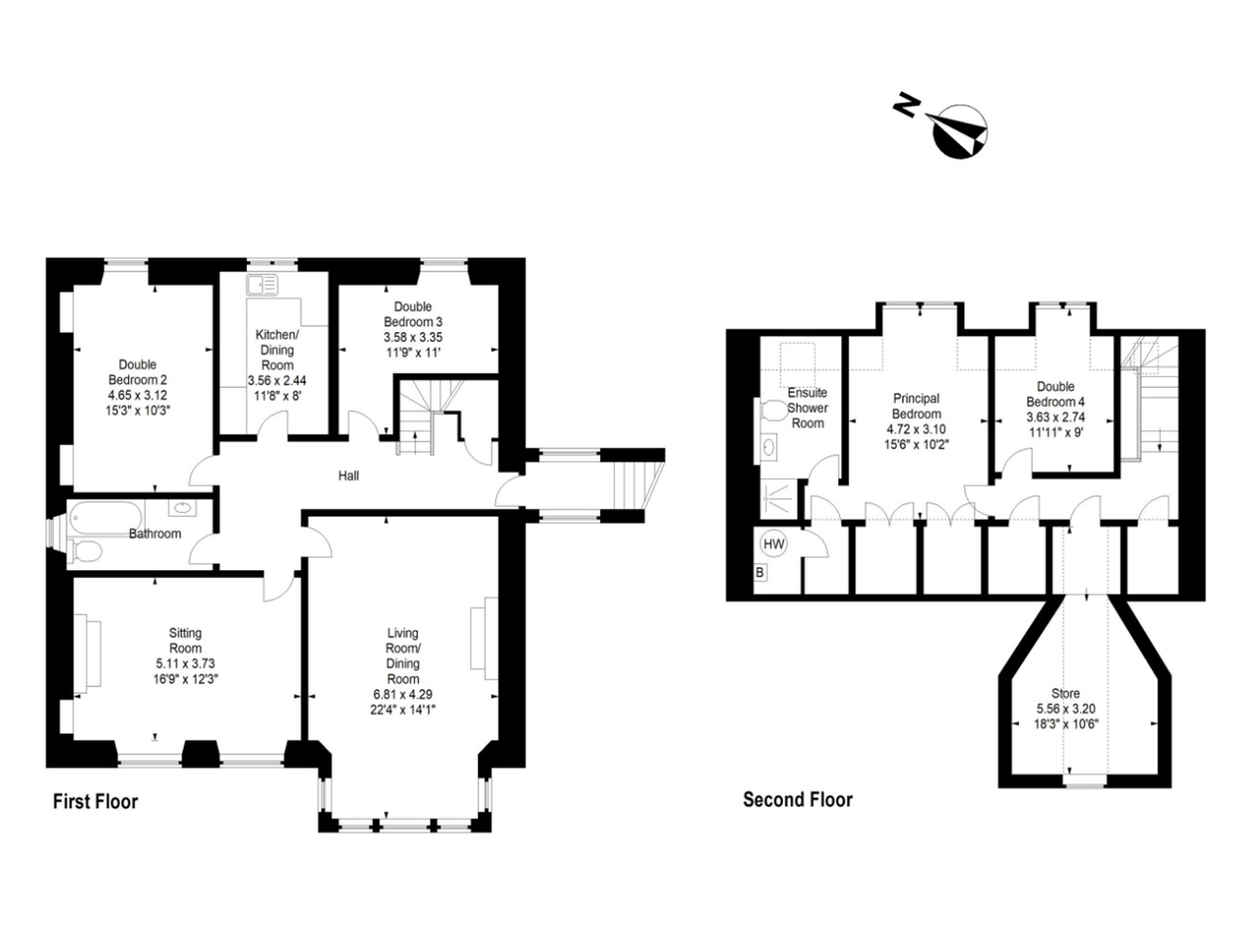
This is a glorious first and second floor maisonette in a listed villa forming part of a traditional Victorian house situated on a quiet leafy road in the Grange conservation area of Edinburgh.The property is accessed via two flights of steps (external and internal) to the first floor front door and offers versatile and generously proportioned accommodation. Of particular note are the bright west-facing sitting and dining rooms on the 1st floor. The box bay window in the sitting room permits an oblique view of Edinburgh Castle.The kitchen is small but fully equipped and has fantastic view towards Arthur's seat. There are two bedrooms, one with a double bed and the other with a king-sized bed facing Arthur's seat on this floor with original Victorian shutters. Completing the accommodation on this floor is a bathroom with bath, overhead shower and underfloor heating. Two further bedrooms are on the second floor, one double, the other king-sized which benefits from a spacious en suite shower room. The views from this floor are exceptional, encompassing the full span of Arthur's Seat and the Crags, plus Berwick Law 26 miles away in East Lothian to the east and north across the Firth to the Ochils in the Central Belt of Scotland on a clear day.There is a shared gate and footpath to this property and the ground floor maisonette where we live. Edinburgh Castle and its festival firework displays are readily seen from our quiet road. The Grange is one of the city’s most charming and elegant residential districts. Blending serene Victorian architecture with leafy, peaceful streets, it offers visitors the best of both worlds: tranquil surroundings and proximity to Edinburgh’s top attractions.We are surrounded by historic buildings, wonderful public spaces such as the Meadows which holds many Festival Venues, the Queens Hall and the Museum of Scotland, and artisan cafes, shops and restaurants. There are frequent bus services into the centre of town which run from bus stops less than five minutes walk away. The Meadows are a beautiful parkland a 10 minute walk away which you can cross to walk to the city centre including the Castle and the Royal Mile in 30 minutes. We are a short walk to two of Edinburgh's seven hills; Blackford Hill and Arthur's Seat, both wild spaces full of wildlife in the middle of our beautiful city.We do not have an HMO licence so not suitable for students, apologies. Available until the end of June 2026.There is 350mb fibre broadband throughout the property.
--- Property Details --- Type: House Bedrooms: 4 Bathrooms: 2 Rent: £3,500 per month Deposit: £3,500 Furnished: Furnished EPC Rating: D Available From: until the end of June 2026 Bills Included: Broadband View Offers Postcode: N1 7GU Listed By: OpenRent Landlord
Location
Address
4 Bed Maisonette, Mansionhouse Road, EH9, N1 7GU
City
N1 7GU
Features and Finishes
Furnished, EPC: D, Available: until the end of June 2026, Bills: Broadband View Offers
Legal Notice
Our comprehensive database is populated by our meticulous research and analysis of public data. MirrorRealEstate strives for accuracy and we make every effort to verify the information. However, MirrorRealEstate is not liable for the use or misuse of the site's information. The information displayed on MirrorRealEstate.com is for reference only.