4 Boston Crescent, Douglas QLD 4814
Property Details
3
1
House
Description
Property Details: • Type: House
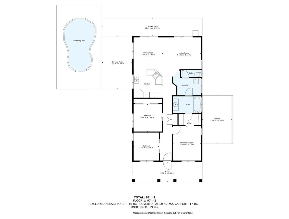
• Bedrooms: 3 • Bathrooms: 1
Description: Comfort & Convenience in the Heart of Douglas! Discover the beauty of this delightful cottage-style home. With 3 spacious bedrooms and a thoughtfully designed 2-way bathroom connected to the main bedroom, this home is ideal for families or those seeking a peaceful retreat. The open living and dining areas create a welcoming atmosphere, seamlessly flowing onto the expansive outdoor living space and sparkling private pool. Whether you're hosting friends, enjoying a quiet evening, or relaxing in the sun, the fully covered rear and side all-weather outdoor area offers the perfect setting for every occasion. The functional kitchen features ample bench space, and plenty of cupboard storage, making meal preparation easy and convenient. Ceiling fans and security screens throughout the home provide added comfort and peace of mind. For added convenience, the property includes a carport with direct access into the home, ensuring you're always sheltered from the elements. The indoor laundry adds practicality, making daily chores effortless. Situated in a prime location, this charming home is just minutes from the scenic Ross River and Riverway Park, offering an abundance of walking, biking, and exercise paths for outdoor enthusiasts. Enjoy the beauty of nature right at your doorstep while still being close to everything you need. You will also be conveniently located close to James Cook University, the Townsville University Hospital and Lavarack Army Barracks, as well as quality schools. This home is the perfect place to unwind, relax, and make memories with family and friends. Don't miss out on this incredible opportunity book in for an inspection and experience all this beautiful cottage-style home has to offer! PROPERTY FEATURES: - 3 spacious bedrooms all complete with fans - Main bedroom offers walk-in robe and connects to the 2-way bathroom - Family bathroom with separate toilet - Internal laundry - Spacious kitchen with ample storage - Sparkling in-ground pool (monthly services included - tenant to pay for chemicals) - Single carport AVAILABLE APPROX: 15/04/2026. OUR AGENCY WILL ONLY PROCESS APPLICATIONS ONCE YOU HAVE EITHER ATTENDED A VIEWING OF THE PROPERTY OR VIEWED THE WALK-THROUGH VIDEO AND ARE HAPPY TO PROCEED WITH YOUR APPLICATION AND SIGN OUR WAIVER CONFIRMING YOU HAVE VIEWED THE WALK-THROUGH VIDEO.
Location
Address
4 Boston Crescent, Douglas QLD 4814
City
Douglas
Features and Finishes
None
Legal Notice
Our comprehensive database is populated by our meticulous research and analysis of public data. MirrorRealEstate strives for accuracy and we make every effort to verify the information. However, MirrorRealEstate is not liable for the use or misuse of the site's information. The information displayed on MirrorRealEstate.com is for reference only.