,4 Payne Road, Beechworth VIC 3747
Property Details
Vacant Land
Description
Property Details: • Type: Vacant Land
• Bedrooms: 0 • Bathrooms: 0
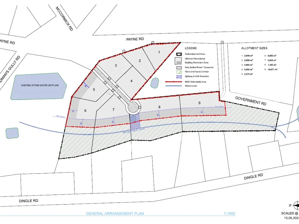
Description: Half acre block just minutes to central Beechworth. Nature corridor thriving with birdlife, and easy access to endless walking trails around Beechworth and into the Stanley Forests. More than enough room for your home and shedding. Nine allotments available in total in this niche development ranging in size from 2,048 sq. m. to 10,884 sq. m. With power, town water and the benefit of town sewer made available to the property for connection, you can build your ideal home in a location that perfectly balances accessibility and tranquility. Genuine 5% discount to apply to the first three blocks sold if contracts signed before October 31st, 2024. Property can be held with a 10% deposit with settlement to occur 14 28 days from title registration. To learn more about this lifestyle blocks, please contact Tony Stockdale at First National Beechworth on 0428 629 778.
Location
Address
,4 Payne Road, Beechworth VIC 3747
City
Beechworth
Features and Finishes
None
Legal Notice
Our comprehensive database is populated by our meticulous research and analysis of public data. MirrorRealEstate strives for accuracy and we make every effort to verify the information. However, MirrorRealEstate is not liable for the use or misuse of the site's information. The information displayed on MirrorRealEstate.com is for reference only.