2325 Dunes, Tustin, CA 92782
Property Details
3
Description
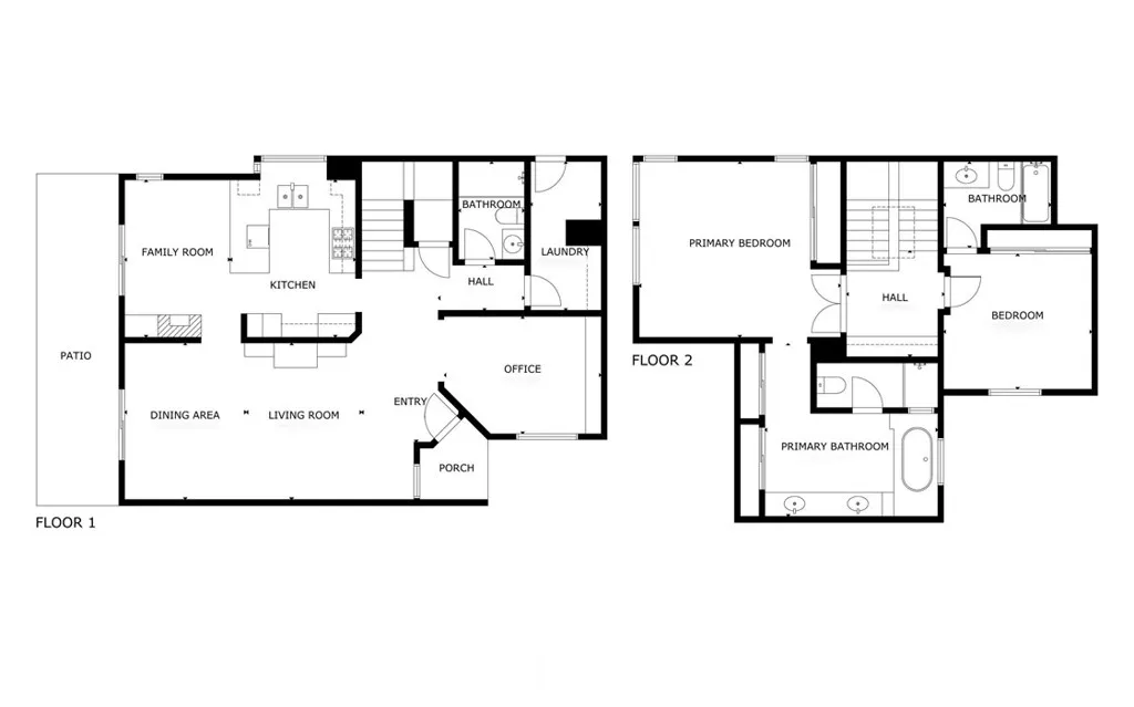
Experience elevated living in upper Tustin Ranch at 2325 Dunes, a beautifully appointed residence ideally situated in the sought-after gated community of Ventana. This townhome-style property welcomes you into the main living areas on the ground floor. Offering 3 bedrooms, 3 bathrooms, and approximately 1,718 square feet of thoughtfully designed open-concept space. With no neighbors above or below, enjoy the privacy of townhome-style living, complemented by a secluded patio featuring low-maintenance landscaping and a trellis cover - ideal for relaxing or entertaining outdoors. Inside, experience a seamless blend between living and dining areas highlighted by vaulted ceilings and an abundance of natural light. The dining area opens directly to the patio, embracing the indoor-outdoor lifestyle Orange County is known for. The main level also includes a convenient bedroom, which is currently staged as an office, offering versatility and added convenience. Additional amenities include a dedicated laundry room, downstairs bathroom, and direct access to a side-by-side two-car garage. The kitchen is both bright and inviting featuring bar seating and an intimate breakfast area situated near a cozy fireplace with access to the private courtyard. Upstairs, the expansive primary suite offers vaulted ceilings, dual closets, and an en-suite bathroom with dual vanities, a soaking tub, and a separate shower. The additional upstairs bedroom functions as a junior suite with its own private bathroom and closet. Located in the desirable upper Tustin Ranch area, Ventana residents benefit from close proximity to Tustin Ranch Golf Club, The Market Place for shopping and dining, and highly rated schools. The community also provides exclusive access to Greenway Park, which includes a pool, spa, playground, and tennis courts - delivering resort-style amenities just steps from home.
PROPERTY DETAILS: Square Feet: 1718 | Bathrooms: 3
INTERIOR FEATURES: • Appliances: Microwave, Gas Range, Electric Oven, Dishwasher • Flooring: Tile, Carpet • Cooling: Central Air • Heating: Central, Fireplace • Common Walls: 2+ Common Walls,No One Below,No One Above • Doors/Windows: Sliding Doors • Fireplaces: Kitchen • Security: Gated Community • Additional Interior Features: Built-in Features, High Ceilings, Recessed Lighting, Open Floorplan
EXTERIOR FEATURES: • Parking: 2 Garage Spaces, 2 Parking Spaces, Attached Garage. • Patio: Patio • Pool Description: Association • Additional Exterior/Lot Features: Patio
LISTING AGENT: Agent: Daniel Choi | Office: Coldwell Banker Realty | Phone: 9493544551 | Email: [email protected]
LISTING INFORMATION: MLS#: OC26065449 | Status: FOR SALE
Location
Address
2325 Dunes
City
Tustin
Features and Finishes
Interior Features:
• Appliances: Microwave, Gas Range, Electric Oven, Dishwasher
• Flooring: Tile, Carpet
• Cooling: Central Air
• Heating: Central, Fireplace
• Common Walls: 2+ Common Walls,No One Below,No One Above
• Doors/Windows: Sliding Doors
• Fireplaces: Kitchen
• Security: Gated Community
• Additional Interior Features: Built-in Features, High Ceilings, Recessed Lighting, Open Floorplan
Exterior Features:
• Parking: 2 Garage Spaces, 2 Parking Spaces, Attached Garage.
• Patio: Patio
• Pool Description: Association
• Additional Exterior/Lot Features: Patio
Legal Notice
Our comprehensive database is populated by our meticulous research and analysis of public data. MirrorRealEstate strives for accuracy and we make every effort to verify the information. However, MirrorRealEstate is not liable for the use or misuse of the site's information. The information displayed on MirrorRealEstate.com is for reference only.