409 Somme Street
Property Details
4
5
Owner
Description
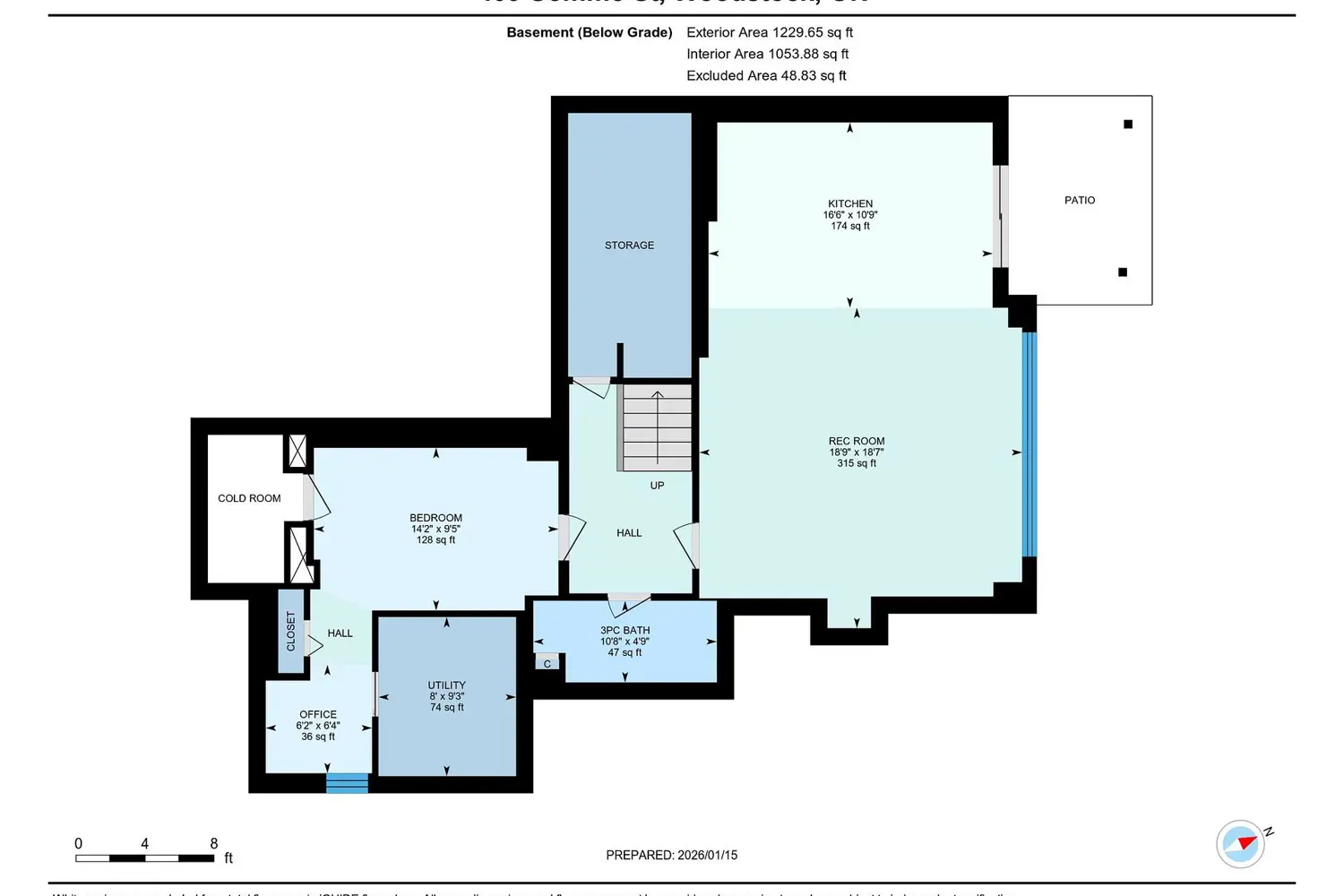
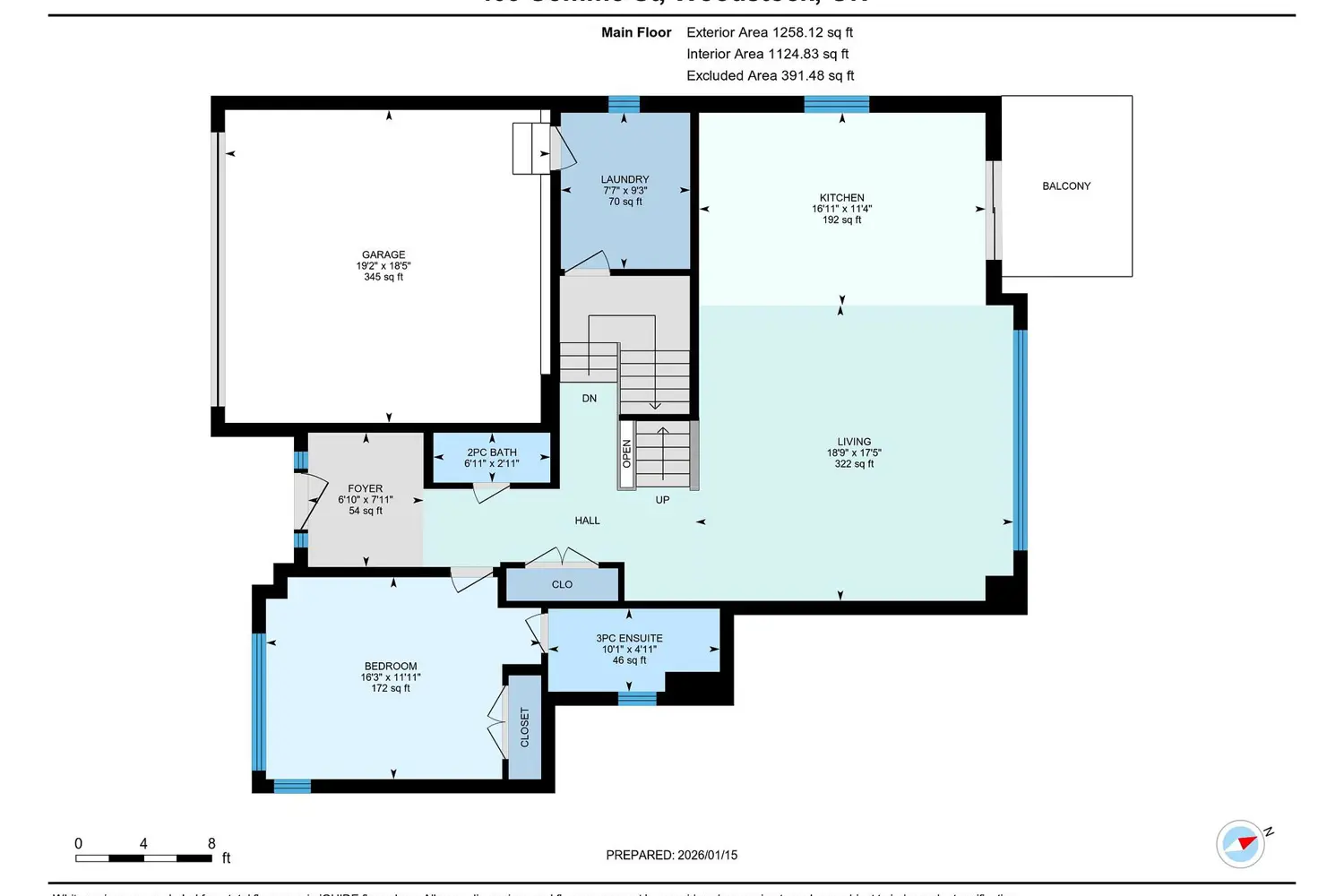
OPEN HOUSE March 29 2-4 This striking contemporary home makes an immediate impression with its brick and stone exterior accented by warm wood details. Inside you will find engineered hardwood and tile flooring complemented by thoughtful, high-end finishes and grand doorways to enhance the luxury aesthetic. The open-concept layout boasts 10-16-20 ft ceilings throughout and is anchored by a dramatic great room featuring soaring ceilings, a fireplace, and expansive windows overlooking a ravine lot behind which you will often see deer grazing.The modern kitchen offers a large island, quality cabinetry, quartz countertops, and premium appliances, seamlessly connecting to the main living space. Smart home wiring, upgraded lighting, and gas lines installed on both the upper and lower levels and a large double garage wired for electric vehicle charging enhance comfort, convenience, and functionality. Designed with flexibility in mind, the home features an ensuite for every bedroom, a main-floor bedroom, and a fully finished walkout basement complete with an in-law suite, offering a total of 3+1 bedrooms and 4+1 bathrooms. An exceptional blend of style, thoughtful design, and natural surroundings.
Location
Address
409 Somme Street
City
Woodstock
Features and Finishes
None
Legal Notice
Our comprehensive database is populated by our meticulous research and analysis of public data. MirrorRealEstate strives for accuracy and we make every effort to verify the information. However, MirrorRealEstate is not liable for the use or misuse of the site's information. The information displayed on MirrorRealEstate.com is for reference only.