43 Barnett Street, Kensington VIC 3031
Property Details
2
1
House
Description
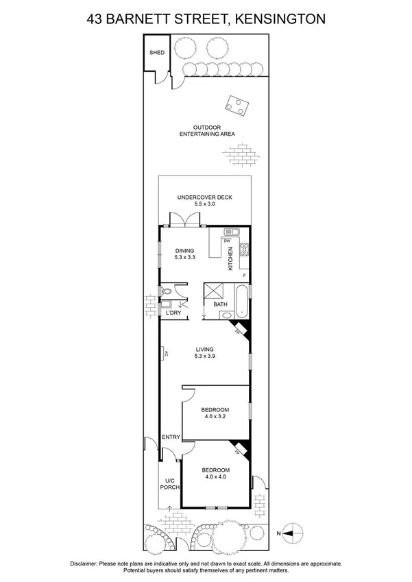
Property Details: • Type: House
• Bedrooms: 2 • Bathrooms: 1
Description: Please note rent is paid monthly - $3324 per calendar month ($765pw) Perfectly positioned in the heart of Kensington, this charming freestanding home offers a comfortable and convenient lifestyle with everything you need close by. Inside, the home features a light-filled layout with two generous bedrooms (main with built-in robes), serviced by a neat central bathroom and separate WC. A spacious living room flows through to an open dining area and well equipped kitchen, complete with gas cooktop and dishwasher. Additional features include split-system heating and cooling in the living area, internal laundry, high ornate ceilings, and solid hardwood floors throughout. Step outside to enjoy a private alfresco-style deck and a sunny backyard with extensive brick paving, perfect for relaxing or entertaining plus a handy storage shed. Ideally located just moments from local cafes, shops, public transport options including Kensington and Macaulay train stations, trams along Racecourse Road, as well as parks, schools, and the Moonee Ponds Creek Trail. Easy access to Citylink makes commuting a breeze. A fantastic opportunity to enjoy a well-located home with space and comfort.
Location
Address
43 Barnett Street, Kensington VIC 3031
City
Kensington
Features and Finishes
None
Legal Notice
Our comprehensive database is populated by our meticulous research and analysis of public data. MirrorRealEstate strives for accuracy and we make every effort to verify the information. However, MirrorRealEstate is not liable for the use or misuse of the site's information. The information displayed on MirrorRealEstate.com is for reference only.