15 Holcomb Ct, Walnut Creek, CA 94596
Property Details
None
None
None
Description
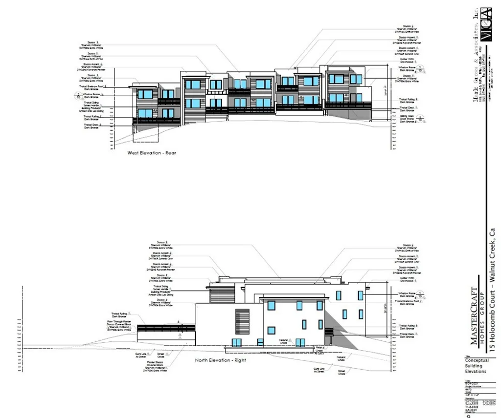
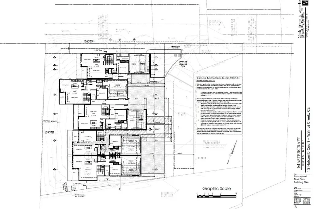
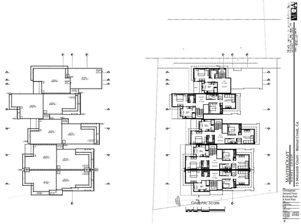
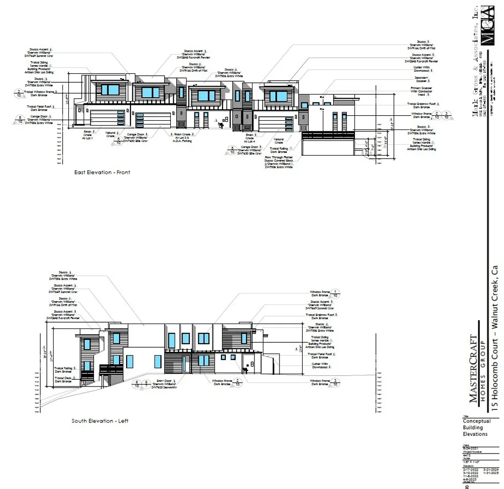
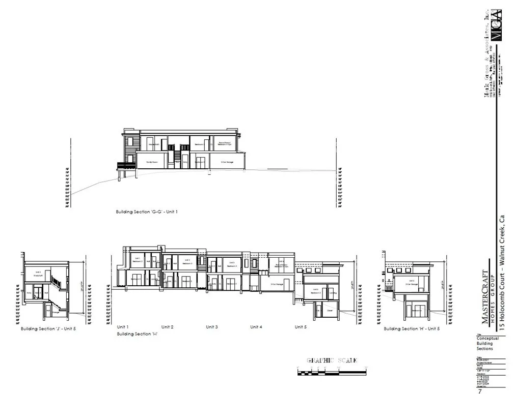
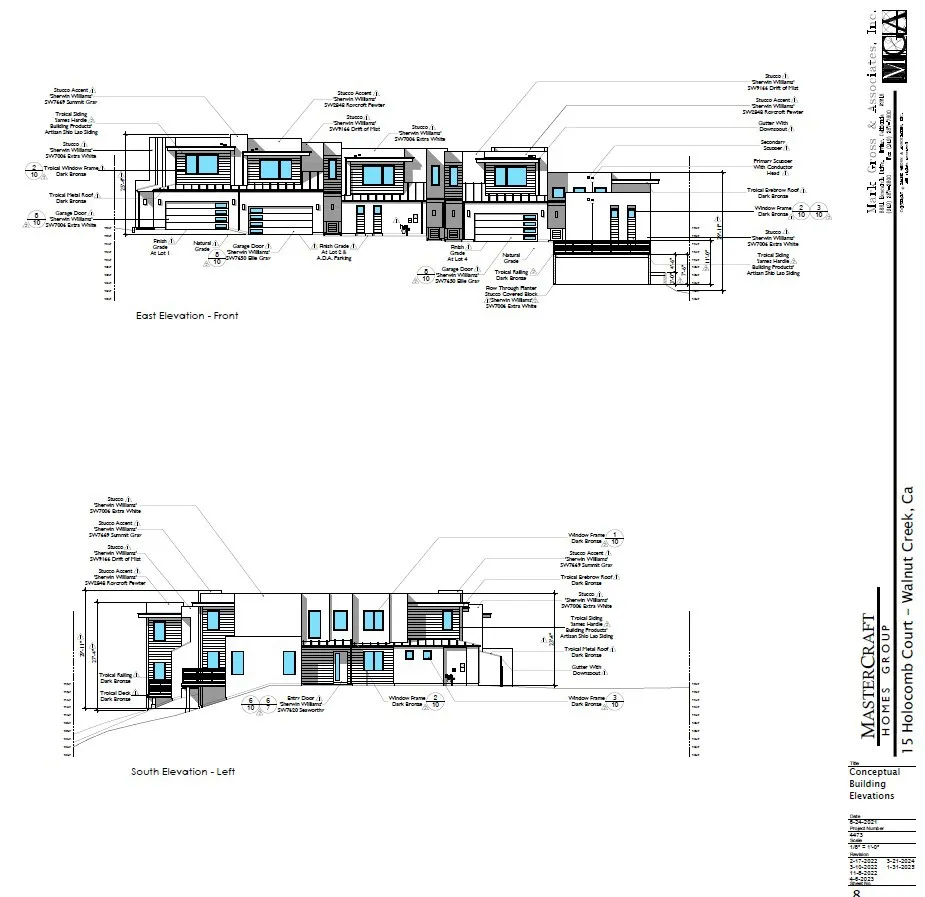
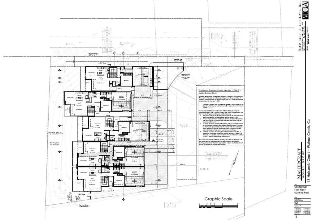
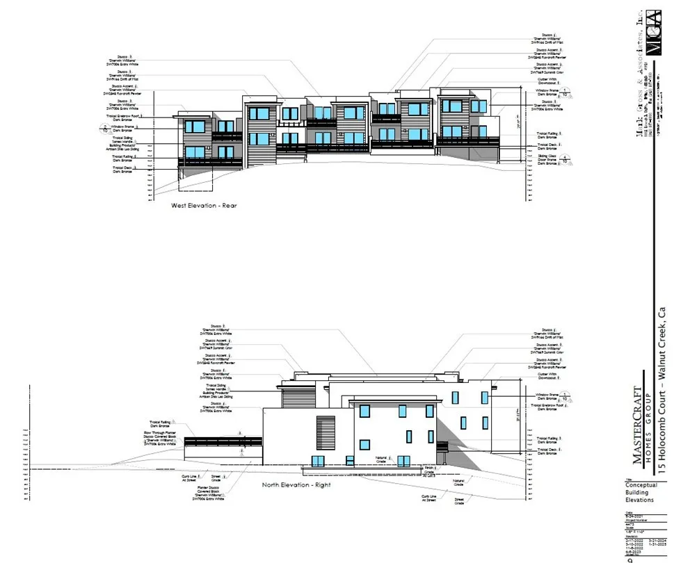
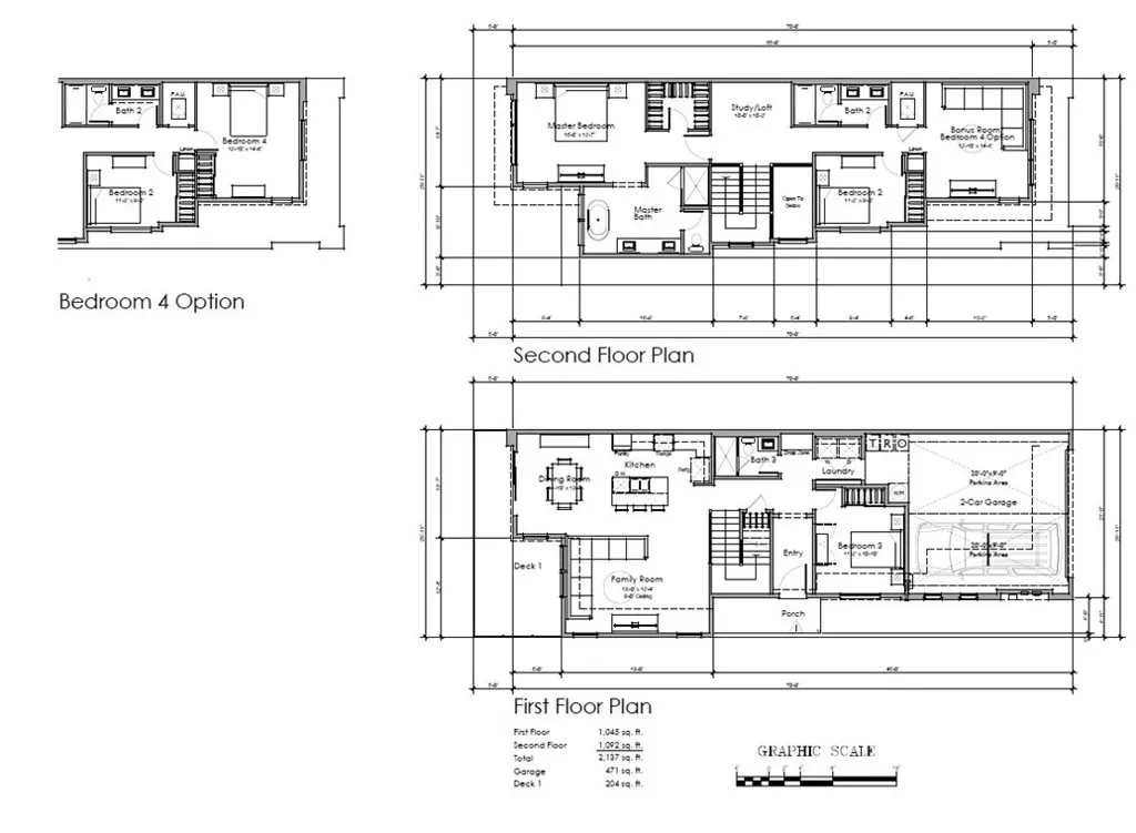
This residential lot has preliminary approved for 5 unit luxury townhomes with the city of Walnut Creek. The included pictures is a rendering of the project and a sample of the preliminary approved plans The project has excellent views to the north from all units.
PROPERTY DETAILS: Square Feet: 052
EXTERIOR FEATURES: • Lot View: Panoramic, City, Valley • Lot Dimensions: 198x 158 irregular • Zoning: units • Fence: None • Additional Exterior/Lot Features: Bluff
LISTING AGENT: Agent: Gary Reed | Office: BlackStar Realty | Phone: 7146121144 | Email: [email protected]
LISTING INFORMATION: MLS#: OC25257014 | Status: FOR SALE
Location
Address
15 Holcomb Ct
City
Walnut Creek
Features and Finishes
Exterior Features:
• Lot View: Panoramic, City, Valley
• Lot Dimensions: 198x 158 irregular
• Zoning: units
• Fence: None
• Additional Exterior/Lot Features: Bluff
Legal Notice
Our comprehensive database is populated by our meticulous research and analysis of public data. MirrorRealEstate strives for accuracy and we make every effort to verify the information. However, MirrorRealEstate is not liable for the use or misuse of the site's information. The information displayed on MirrorRealEstate.com is for reference only.