4486 Wisemans Ferry Rd, Spencer NSW 2775
Property Details
Vacant Land
Description
Property Details: • Type: Vacant Land
• Bedrooms: 0 • Bathrooms: 0
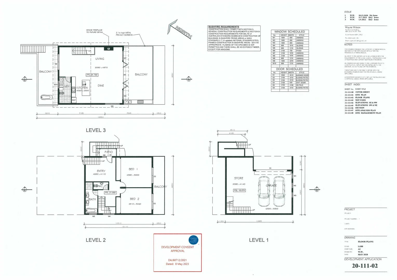
Description: Vacant land with DA approved plans so close to Spencer Village is rare. All the hard work has been done and you can start your build. This land is an impressive 1511 square metres (approx), elevated, flood free and offers beautiful river and valley views. Access to the property is already in, with a concrete driveway leading directly to the proposed ground level of the property. The proposed approved home is set over 3 levels - Parking on the ground level, leading up to 2 bedrooms, and the top level features a spacious open plan entertaining zone designed to take in the beautiful views. The location of the land is just perfect, close enough to enjoy all that Spencer Village has to offer but far enough away to offer a sense of privacy and tranquility. In Spencer The Anchor General Store serves up great food and offers the essentials and there is an incredible Thai restaurant, quality public amenities with a boat ramp, wharf and access to the Hawkesbury River and Mangrove Creek. - DA Approved Plans - Private Power Pole on Site ready for Connection - Generous 1511 square metre (approx) - Beautiful Views - Elevated and Flood Free - Cleared site - Ready to Build - Concrete Driveway Access - Moments to Spencer Village The Central Coast is under an hour as is Sydney's upper north shore via sealed roads to the M1. The property is also within a commutable distance to Sydney's CBD. Contact Trent Iverson on 0409 738 388 to arrange a private inspection. Disclaimer: All information about this property has been provided from sources we believe to be reliable. Vella Iverson Real Estate has not verified the information and does not warrant its accuracy or completeness. Parties should make and rely on their own enquiries in relation to this property. All photographs, maps, boundary markings, measurements and images are representative only for marketing purposes. Property Code: 269
Location
Address
4486 Wisemans Ferry Rd, Spencer NSW 2775
City
Spencer
Features and Finishes
None
Legal Notice
Our comprehensive database is populated by our meticulous research and analysis of public data. MirrorRealEstate strives for accuracy and we make every effort to verify the information. However, MirrorRealEstate is not liable for the use or misuse of the site's information. The information displayed on MirrorRealEstate.com is for reference only.