2496 N Beechwood Street, Orange, CA 92865

USD 1190000 For Sale
MLS: PW25267466

Property Details

Bathrooms

2

Description

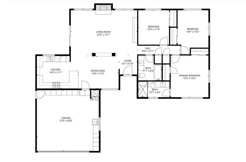
Welcome Home to this beautifully remodeled TURN KEY home in north Orange! This 3-bedroom, 2- full bath home boasts oak hardwood floors throughout, open floorplan living space, and a spacious back yard with sparkling swimming pool just waiting for summertime parties! This home's interior is all on one level with no steps. The updated kitchen features a dual oven and gas cooktop, as well as ample cabinet and pantry storage including pull-out shelving. Bright recessed ceiling lighting and under-cabinet accent lighting show off the antiqued subway tiles and dark quartz countertops. The refrigerator nook is directly plumbed. The breakfast bar separates the kitchen from the adjacent dining room, which has ample space for a large dining table as well as built-in shelving to show off your favorite cookbooks or dishes. The spacious living area features a large custom-built entertainment unit as well as convenient in-floor power outlets. The cozy fireplace has been maintained with its original brick charm, updated with a modern mantle. Plantation-style shutters cover the large, sunny windows that overlook the pool and back yard. A large sliding door opens to the spacious covered patio and then out to the pool deck, with plenty of space for lounging in the sun or splashing in the pool. Perfect for entertaining, or just enjoying a beautiful Southern California afternoon all year long! The primary bedroom features two reach-in closets with cedarwood flooring, and the spa-like primary ensuite has been beautifully updated with modern plumbing fixtures. The walk-in shower features a beautiful carrara tile surround and shower seat. Both large secondary bedrooms have been updated with new windows, mirrored sliding closet doors, and closet cedarwood flooring. The guest bathroom feels simply luxurious with updated vanity, bathtub, and fixtures, modern floral wallpaper with reverse-matching custom shower curtain, and penny-tile flooring. The oversized 2-car garage has an updated garage door and new motor. There is ample storage available with the garage cabinet system, and space for a workbench adjacent to the laundry hookups and utility sink. The 2021 remodel project for this home included interior electrical rewiring, attic ductwork, oak flooring, new dual-pane windows, and a new water heater in addition to what is noted above. Freeway close to 57, 55, and 91, and minutes away from Chapman U, CSUF, Orange Circle, and both Anaheim Stadium and Honda Center.

PROPERTY DETAILS: Square Feet: 1463 | Bathrooms: 2

INTERIOR FEATURES: • Appliances: Dishwasher, Double Oven, Electric Oven, Disposal, Gas Range, Microwave • Cooling: Central Air, Ceiling Fan(s) • Heating: Central, Fireplace • Plumbing: Gas Water Heater • Common Walls: No Common Walls • Doors/Windows: Double Pane Windows • Fireplaces: Living Room • Security: Carbon Monoxide Detector(s), Smoke Detector(s) • Additional Interior Features: Breakfast Bar, Ceiling Fan(s), Open Floorplan, Recessed Lighting

EXTERIOR FEATURES: • Parking: 2 Garage Spaces, 5 Parking Spaces, Concrete, Garage, Garage Faces Front, Garage Door Opener, Attached Garage. • Exterior: Stucco • Patio: Porch, Patio, Covered, Rear Porch • Roof: Shingle • Pool: InGround • Pool Description: Private, Fenced, In Ground • Spa: None • Lot Dimensions: 101'x81' • Fence: Block • Structural Condition: Updated/Remodeled • Additional Exterior/Lot Features: Rear Porch, Patio, Porch Back Yard, Corner Lot, Front Yard, Sprinklers In Front

LISTING AGENT: Agent: Stephanie Logan | Office: Keller Williams Realty | Phone: 000-000-0000 | Email: [email protected]

LISTING INFORMATION: MLS#: PW25267466 | Status: FOR SALE

Location

Address

2496 N Beechwood Street

City

Orange

Features and Finishes

Interior Features:

• Appliances: Dishwasher, Double Oven, Electric Oven, Disposal, Gas Range, Microwave

• Cooling: Central Air, Ceiling Fan(s)

• Heating: Central, Fireplace

• Plumbing: Gas Water Heater

• Common Walls: No Common Walls

• Doors/Windows: Double Pane Windows

• Fireplaces: Living Room

• Security: Carbon Monoxide Detector(s), Smoke Detector(s)

• Additional Interior Features: Breakfast Bar, Ceiling Fan(s), Open Floorplan, Recessed Lighting

Exterior Features:

• Parking: 2 Garage Spaces, 5 Parking Spaces, Concrete, Garage, Garage Faces Front, Garage Door Opener, Attached Garage.

• Exterior: Stucco

• Patio: Porch, Patio, Covered, Rear Porch

• Roof: Shingle

• Pool: InGround

• Pool Description: Private, Fenced, In Ground

• Spa: None

• Lot Dimensions: 101'x81'

• Fence: Block

• Structural Condition: Updated/Remodeled

• Additional Exterior/Lot Features: Rear Porch, Patio, Porch Back Yard, Corner Lot, Front Yard, Sprinklers In Front

Legal Notice

Our comprehensive database is populated by our meticulous research and analysis of public data. MirrorRealEstate strives for accuracy and we make every effort to verify the information. However, MirrorRealEstate is not liable for the use or misuse of the site's information. The information displayed on MirrorRealEstate.com is for reference only.

Real Estate Broker
Stephanie Logan
Brokerage
Keller Williams Realty
Likes

0

Views

10

This website uses cookies to ensure you get the best experience. Learn more