2364 Canyon Drive, Los Angeles, CA 90068
Property Details
1
Description
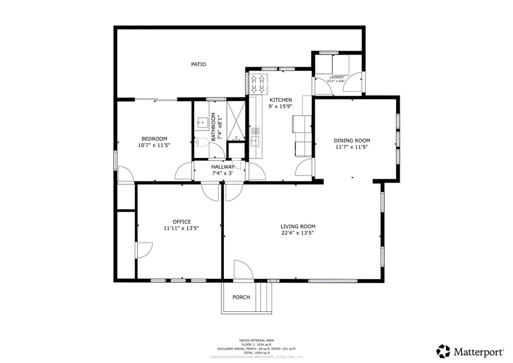
Charming 1923 home in the heart of Bronson Canyon, just moments from Griffith Park and the shops and restaurants of Franklin Village. This inviting 2-bedroom, 1-bath residence is located in one of the Hollywood Hills' most desirable neighborhoods. Filled with natural light, the home features original hardwood floors, a remodeled bathroom, and a comfortable, functional layout. The living room and adjacent dining area are both lined with oversized windows, filling the space with abundant natural light and creating a warm, inviting setting for everyday living or entertaining. The outdoor space offers a spacious, usable patio framed by lush hillside greenery, creating a private and tranquil setting ideal for relaxing or entertaining. A detached one-car garage plus additional driveway provides flexibility for parking, storage, or potential future additional dwelling unit (ADU). Lovingly maintained over the years, the home is move-in ready while offering the flexibility for a buyer to personalize and update at their own pace. Improvements include a newer roof, updated plumbing, and termite clearance, providing peace of mind and a solid foundation for future enhancements. A wonderful blend of character, comfort, and location - this is a rare opportunity to enjoy canyon living in one of Los Angeles' most sought-after neighborhoods.
PROPERTY DETAILS: Square Feet: 1100 | Bathrooms: 1
INTERIOR FEATURES: • Appliances: Dryer, Washer, Disposal, Refrigerator, Gas Range, Gas Oven, Dishwasher • Flooring: Wood • Cooling: Window/Wall Unit, Ceiling Fan(s) • Heating: Floor Furnace • Plumbing: Gas Water Heater • Common Walls: No Common Walls • Doors/Windows: Sliding Doors • Fireplaces: None • Additional Interior Features: Walk-In Closet(s), Built-in Features, Ceiling Fan(s), Tile Counters
EXTERIOR FEATURES: • Parking: 1 Garage Spaces, 1 Parking Spaces, Garage, Driveway. • Patio: Porch, Patio, Covered, Front Porch • Roof: Tile • Pool Description: None • Spa: None • Lot View: Hill, Other • Fence: Wrought Iron, Block • Additional Exterior/Lot Features: Front Porch, Patio, Porch Front Yard, Back Yard
LISTING AGENT: Agent: Jason Cook | Office: Coldwell Banker Realty | Phone: 6613176900 | Email: [email protected]
LISTING INFORMATION: MLS#: SR26074394 | Status: FOR SALE
Location
Address
2364 Canyon Drive
City
Los Angeles
Features and Finishes
Interior Features:
• Appliances: Dryer, Washer, Disposal, Refrigerator, Gas Range, Gas Oven, Dishwasher
• Flooring: Wood
• Cooling: Window/Wall Unit, Ceiling Fan(s)
• Heating: Floor Furnace
• Plumbing: Gas Water Heater
• Common Walls: No Common Walls
• Doors/Windows: Sliding Doors
• Fireplaces: None
• Additional Interior Features: Walk-In Closet(s), Built-in Features, Ceiling Fan(s), Tile Counters
Exterior Features:
• Parking: 1 Garage Spaces, 1 Parking Spaces, Garage, Driveway.
• Patio: Porch, Patio, Covered, Front Porch
• Roof: Tile
• Pool Description: None
• Spa: None
• Lot View: Hill, Other
• Fence: Wrought Iron, Block
• Additional Exterior/Lot Features: Front Porch, Patio, Porch Front Yard, Back Yard
Legal Notice
Our comprehensive database is populated by our meticulous research and analysis of public data. MirrorRealEstate strives for accuracy and we make every effort to verify the information. However, MirrorRealEstate is not liable for the use or misuse of the site's information. The information displayed on MirrorRealEstate.com is for reference only.