46 Aspinall Street, Watson ACT 2602
Property Details
3
2
New Apartments / Off the Plan
Description
Property Details: • Type: New Apartments / Off the Plan
• Bedrooms: 3 • Bathrooms: 2
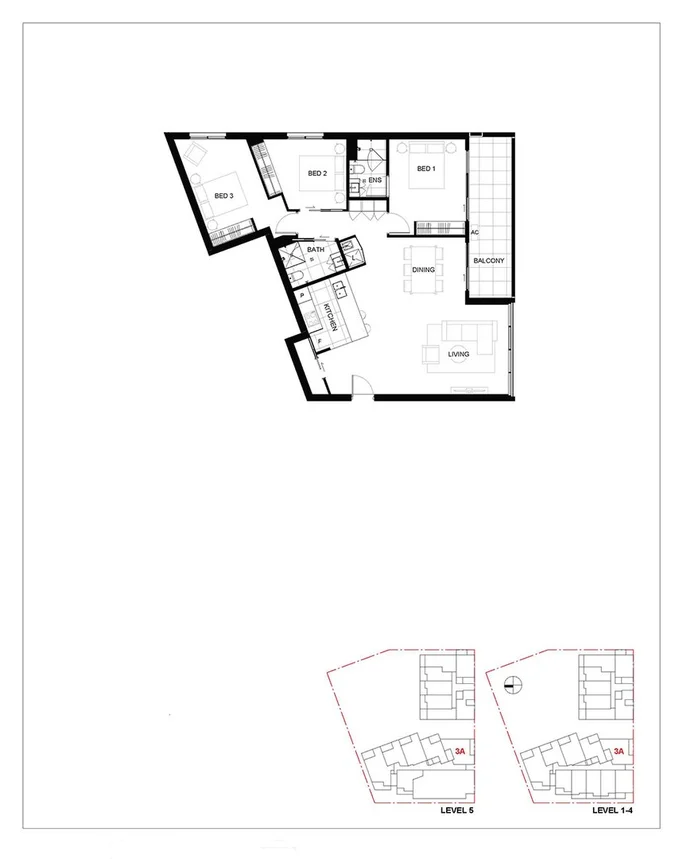
Description: Display suite at 1 Buninyong Street Watson Norrebro is community living with a contemporary twist. This precinct is the chance to slow down and live more simply. It's connection with people, landscape & home. Where people are at the centre. Think apartments are all the same? Think again. These spacious, house size three bedroom apartments offer living spaces from approximately 103sqm plus balcony that invites you to truly live both indoors and out. Light-filled and intelligently planned, the open-plan layout creates a sense of spaciousness rarely found. Thefull-sized kitchen-flows seamlessly into a large living and dining area, perfect for relaxing or entertaining. Step through sliding doors to yourwide, usable balcony, ideal for morning coffee or evening drinks while enjoying the northern light. The three generous bedrooms leave plenty of room to move, while thesleek bathroom and ensuite, andample storagemake everyday living effortless. The property also offers two secure basement car spaces. Set within one of Watson's most desirable developments, this apartment isn't just a home-it's alifestyle upgrade. The final chapter is just the beginning... The Nord at Norrebro is the final building and last opportunity to join one of Canberra's most sought-after precincts. The Nord embodies the maturity of the precinct - refined architecture and generous spaces that reflect how people live today. Every element has been designed for comfort and connection, balancing the ease of an established address with the freshness of something new. And it's all ready for you to move into from early 2026. As the final piece in Norrebro's story, The Nord offers more .....that's more light, more space and more opportunity to belong to a community that's already thriving. It's your chance to secure a home designed for lasting quality and everyday ease in Canberra's most connected corner. The Nord is defined by thoughtful architecture and enduring materials. From its north-facing outlooks to the spacious interiors and high energy performance, it's the perfect capstone in Norrebro's evolution - contemporary, sustainable and built to stand the test of time. Designed for you Amenities are established when we embrace the spaces surrounding our homes. The Nord combines scenic parks, striking architecture and a lively central forecourt that fosters a vibrant community. The precinct provides places to gather for markets and entertainment. Enjoy the village feel of corner cafes and grocers a short stroll from your door. What could be better than an Inner North lifestyle? It's that rich combination of amenities, proximity to the city and European parkland nearby that gives it a unique quality. Watson is where the city meets the bush. Take a brisk walk up Mt Majura to greet a misty sunrise, or wander through the native brush at Justice Robert Hope Park. Real communities are established when we embrace the spaces surrounding our homes. Norrebro combines scenic parks, striking architecture and a lively central forecourt. Norrebro incorporates single apartments to terraces, the mix will encourage a vibrant community. Norrebro provides places to play and areas to gather for markets and entertainment. Enjoy the village feel of corner cafes and grocers a short stroll from your door. Norrebro provides a variety of landscaped spaces including 1 hectare of open parkland within the development. Special care has been taken to work with the terrain and to keep the established trees. The urban forecourt is the heart of Norrebro, a social landscape providing room to cultivate community with alfresco dining, galleries, performance art and community gardens. Further on, a large park will invite kids and families to play in the open air, with an attractive natural playground. Key Features: - Average 7.7-star energy rating (up to 8.7 stars) - Parks, BBQ areas and community gardens already established - New park being established opposite The Nord - Designed by Cox Architects - Developed by HTI Group - Built by Peir Projects - Completion early 2026
Location
Address
46 Aspinall Street, Watson ACT 2602
City
Watson
Features and Finishes
None
Legal Notice
Our comprehensive database is populated by our meticulous research and analysis of public data. MirrorRealEstate strives for accuracy and we make every effort to verify the information. However, MirrorRealEstate is not liable for the use or misuse of the site's information. The information displayed on MirrorRealEstate.com is for reference only.