49 Alpha Terrace, Solomontown SA 5540
Property Details
5
2
House
Description
Property Details: • Type: House
• Bedrooms: 5 • Bathrooms: 2
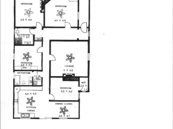
Description: Phone Enquiry ID: 234171 *Price Updated* Solid beautiful home and pleasure to present to the market. 1920's Stone Return Veranda Queen Anne Villa with Modern Extension Close to the town centre and water front Renovated in 2012 with new Electrical, Gas and Plumbing installed. Accommodation is generous, spacious rooms with 4 / 5 bedrooms, or second separated lounge room, 2 bath, high ceilings, Polished Baltic Pine Floorboards and Victorian Arches, along with family friendly kitchen dining with access directly to the outdoor area. Large Kitchen, 2 Bathrooms, Split System Air conditioning, x 2 , Gas Fired Wall Heater plus Combustion Heater. The House keeps comfortable all year round the home stays cool for long periods. Rear access with, Large Undercover Paved Carport/Outdoor Area (6x9m) and high clearance for caravan and boat. Private fully fenced easy maintained gardens complimenting the Character building. Rear Lane way access to enclosed private yard. Large Established trees. Shed 7.6m x 7.6m. Small Animal Shelters for a chicken, rabbit, or guinea pig. Property leased since 2021, currently at $430 per week. Leased until Jan 28 2026. New Rent Value Cira $550 pet week Property will be offered with vacant possession, Please contact with questions or to view.
Location
Address
49 Alpha Terrace, Solomontown SA 5540
City
Solomontown
Features and Finishes
None
Legal Notice
Our comprehensive database is populated by our meticulous research and analysis of public data. MirrorRealEstate strives for accuracy and we make every effort to verify the information. However, MirrorRealEstate is not liable for the use or misuse of the site's information. The information displayed on MirrorRealEstate.com is for reference only.