49 Benfer Road, Victoria Point QLD 4165
Property Details
4
2
House
Description
Property Details: • Type: House
• Bedrooms: 4 • Bathrooms: 2
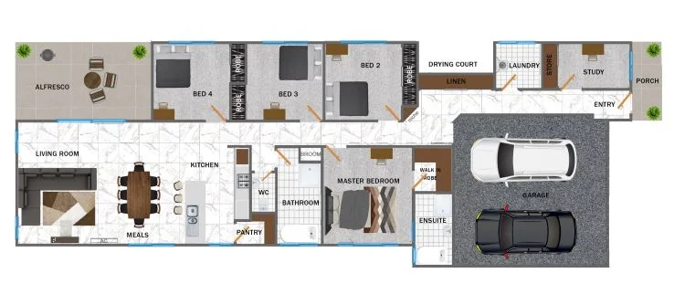
Description: This near new 4-bedroom home has only had the one lot of tenants and will be ready for new tenants. Located within a 1 minute walk to St Rita's Catholic School and only minutes from Victoria Shops and Thompsons beach, this home is perfectly located to provide you the best of all worlds! Property features: - 4 Bedrooms with Ceiling Fans - Master Bedroom with Ensuite and Spacious WIR - Open Plan Family/Dining/Kitchen - Pantry Room - Stone Benchtops - Separate Study Room - Split Cycle Air Conditioning in Lounge - Double Lock Up Garage - Alfresco Area - Low Maintenance Gardens ** Please note the rent will increase to $790.00 per week, effective 28th June, 2026. HOW TO APPLY & INSPECT Send an enquiry below. To inspect, please register your interest and you will be notified as soon as an inspection is scheduled. *PHOTOS ARE INDICATIVE ONLY - Accurate photos to come*
Location
Address
49 Benfer Road, Victoria Point QLD 4165
City
Victoria Point
Features and Finishes
None
Legal Notice
Our comprehensive database is populated by our meticulous research and analysis of public data. MirrorRealEstate strives for accuracy and we make every effort to verify the information. However, MirrorRealEstate is not liable for the use or misuse of the site's information. The information displayed on MirrorRealEstate.com is for reference only.