19314 Valerio, Reseda, CA 91335

USD 1349000 For Sale
MLS: GD25279434

Property Details

Bathrooms

5

Description

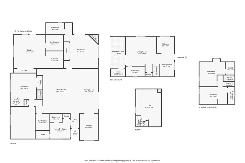
Three units, fully renovated and move-in ready, this turnkey property includes a main house, permitted ADU, and permitted JADU, all delivered vacant with strong rental potential. Recent upgrades include a new roof, three brand-new kitchens, fully remodeled bathrooms, new flooring throughout, and all new appliances, with electrical updated to a 3-gang 400-amp panel and each unit separately metered. The main house offers 3 bedrooms, 2.5 bathrooms, a bonus room, and a 2-car garage, while the ADU provides 2 bedrooms and 1.5 baths and the JADU is a 392 sq ft studio attached to the main house. The exterior features low-maintenance landscaping with artificial turf and decomposed granite, new vinyl fencing, and large private yards for each unit. In its current configuration, the property is projected to generate $9,000 or more per month in rental income. Starting January 2026, new ADU laws allow the garage to be converted into a 4th unit, creating the potential for a four-unit income property with exceptional rental income and investor upside.

PROPERTY DETAILS: Square Feet: 2760 | Bathrooms: 5

INTERIOR FEATURES: • Appliances: Dishwasher, Gas Oven, Gas Range, Gas Cooktop, Microwave • Flooring: Laminate • Cooling: Central Air • Heating: Central • Common Walls: 1 Common Wall • Fireplaces: Family Room, Living Room • Additional Interior Features: High Ceilings, Recessed Lighting

EXTERIOR FEATURES: • Parking: 2 Garage Spaces, 5 Parking Spaces, Garage, Attached Garage. • Pool Description: None • Lot View: Other, City • Structural Condition: Updated/Remodeled • Additional Exterior/Lot Features: Guest House

LISTING AGENT: Agent: Alec Bogossian | Office: JohnHart Real Estate | Phone: 8183145025 | Email: [email protected]

LISTING INFORMATION: MLS#: GD25279434 | Status: FOR SALE

Location

Address

19314 Valerio

City

Reseda

Features and Finishes

Interior Features:

• Appliances: Dishwasher, Gas Oven, Gas Range, Gas Cooktop, Microwave

• Flooring: Laminate

• Cooling: Central Air

• Heating: Central

• Common Walls: 1 Common Wall

• Fireplaces: Family Room, Living Room

• Additional Interior Features: High Ceilings, Recessed Lighting

Exterior Features:

• Parking: 2 Garage Spaces, 5 Parking Spaces, Garage, Attached Garage.

• Pool Description: None

• Lot View: Other, City

• Structural Condition: Updated/Remodeled

• Additional Exterior/Lot Features: Guest House

Legal Notice

Our comprehensive database is populated by our meticulous research and analysis of public data. MirrorRealEstate strives for accuracy and we make every effort to verify the information. However, MirrorRealEstate is not liable for the use or misuse of the site's information. The information displayed on MirrorRealEstate.com is for reference only.

Real Estate Broker
Alec Bogossian
Brokerage
JohnHart Real Estate
Likes

0

Views

13

This website uses cookies to ensure you get the best experience. Learn more