5 Ellen Street, Mount Nasura WA 6112
Property Details
3
1
House
Description
Property Details: • Type: House
• Bedrooms: 3 • Bathrooms: 1
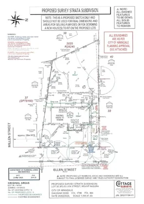
Description: Positioned on a generous size block this charming home perfectly blends comfort and potential. This delightful property, constructed in 1968, offers a spacious living environment and live amongst lovely homes. Where you have several different options to explore. Extend on the existing home then build a huge workshop!! Meet the conditional subdivision requirements then retain the front dwelling and build a second home!! Build a granny flat with a huge alfresco area!! Or just sell the rear block!! Now it is your chance to take this exciting opportunity and turn your vision into reality. Main house features are: - Separate entrance with room to store your jackets & shoes - Good size loungeroom - Jarrah flooring throughout - Separate smaller dining area overlooking back yard - Renovated kitchen with large window allowing natural light in - 3 bedrooms with built in cupboard in the main bedroom - Renovated bathroom with disability access - Renovated laundry - Split system air con in the loungeroom - Paved yard - Access to the rear of the property on both sides of the block Garage has been converted, features are: - Perfect for elderly parent/s or teenager looking for their own space and privacy - Separate access - Combined kitchen, laundry and living space - Bathroom & wcs - Split system air con - Small courtyard Rear block features are: Current owner has received the WA Planning Commission (WAPC) Conditional Approval for a proposed Survey Strata Subdivision. All prospective buyers are recommended to seek professional advice to explore their options. Located in the serene neighborhood of Mount Nasura, this property is close to hospitals, open parks, schools, shopping centres, eateries making it a wonderful choice for families. With a price guide buyers from $999,000, this property presents an excellent opportunity for someone looking to invest in a wonderful community. Don't miss your chance to make this house your home! Feel that country vibe. Call Jenn Ruggiero 0477 958 845 today!! All below are (approximate only) Built 1968 House size 89 sqm Split up Front lot 390 sqm Rear lot 483sqm Entire Block size together 941sqm inc small area of CP 63sqm in front of the driveway. Disclaimer: Whilst every care has been taken in the preparation of this advertisement, prospective purchasers are encouraged to make their own enquiries to satisfy themselves on all pertinent matters. The sellers or the agent holds no responsibility for inaccuracies within this advertisement. Drawings may not be to scale.
Location
Address
5 Ellen Street, Mount Nasura WA 6112
City
Mount Nasura
Features and Finishes
None
Legal Notice
Our comprehensive database is populated by our meticulous research and analysis of public data. MirrorRealEstate strives for accuracy and we make every effort to verify the information. However, MirrorRealEstate is not liable for the use or misuse of the site's information. The information displayed on MirrorRealEstate.com is for reference only.