5 Leo Place, Spearwood WA 6163
Property Details
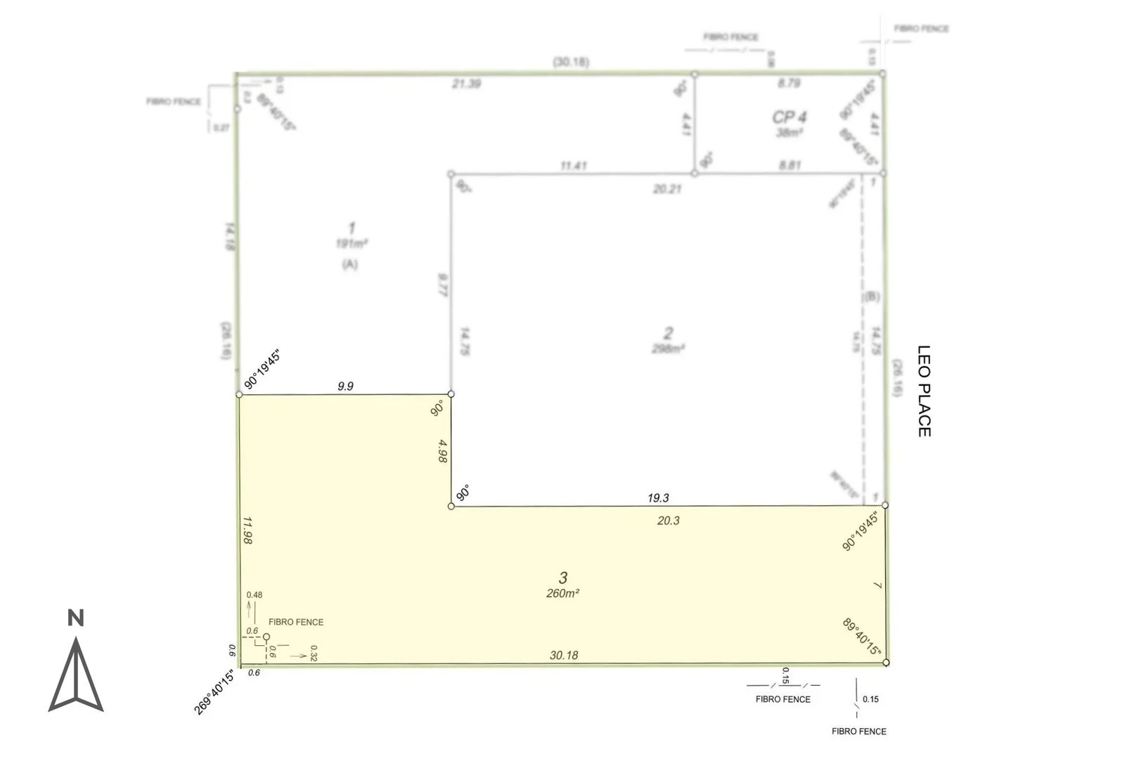
Vacant Land
Description
Property Details: • Type: Vacant Land
• Bedrooms: 0 • Bathrooms: 0
Description: Great Opportunity to Purchase this East Facing 260sqm Strata Block with Its Own Street Frontage. Get your Architect to Work and Build a Contemporary Home In a precinct just 4km From The Ocean. Enjoy the Convenience this site will give you as it really has a Location that bestows the benefits of Spearwood and surrounds. NIL Strata Fees, Established NEW fencing on South and West faces, Owner will have cement debris cleared prior to Settlement. Do Your Sums, You can be Living in a Brand New Home for less than a $Million in this Pocket of Spearwood. Call Listing Agent Garry Maddeford 0409 2000 54 to Make Your Offer.
Location
Address
5 Leo Place, Spearwood WA 6163
City
Spearwood
Features and Finishes
None
Legal Notice
Our comprehensive database is populated by our meticulous research and analysis of public data. MirrorRealEstate strives for accuracy and we make every effort to verify the information. However, MirrorRealEstate is not liable for the use or misuse of the site's information. The information displayed on MirrorRealEstate.com is for reference only.