50/274 South Terrace, Adelaide SA 5000
Property Details
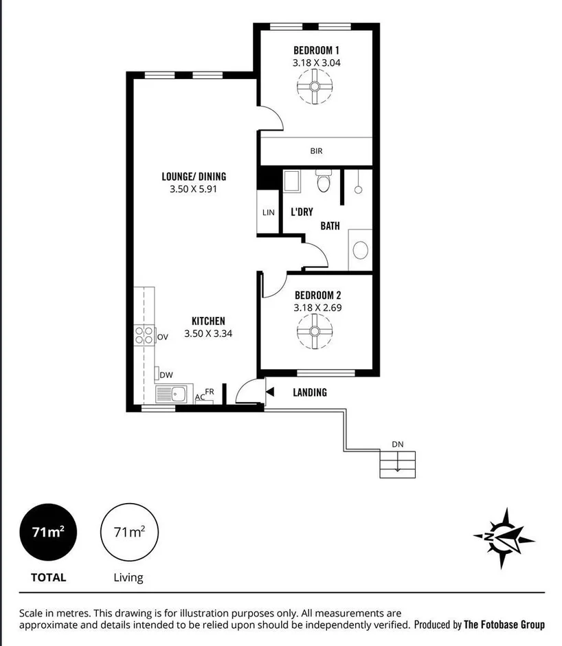
2
1
Apartment / Unit / Flat
Description
Property Details: • Type: Apartment / Unit / Flat
• Bedrooms: 2 • Bathrooms: 1
Description: In great location directly opposite the South Terrace parklands, this partly furnished 2 bedroom apartment is ready for a new occupant. Minutes away to everything the city lifestyle has to offer, including popular eateries in Hutt street, walking distance to the CBD and public transport. Features include: - 2 carpeted bedrooms, main bedroom with built-in robe and access to balcony - Open plan kitchen, living & meals area - Modern kitchen with stainless-steel appliances including dishwasher and ample storage - Contemporary bathroom and laundry - Quality fixtures and fittings - Sorry no pets due to strata regulations Tenants are responsible for all water supply and usage charges Open dates and times subject to change without notice Please apply through Tenant Options
Location
Address
50/274 South Terrace, Adelaide SA 5000
City
Adelaide
Legal Notice
Our comprehensive database is populated by our meticulous research and analysis of public data. MirrorRealEstate strives for accuracy and we make every effort to verify the information. However, MirrorRealEstate is not liable for the use or misuse of the site's information. The information displayed on MirrorRealEstate.com is for reference only.