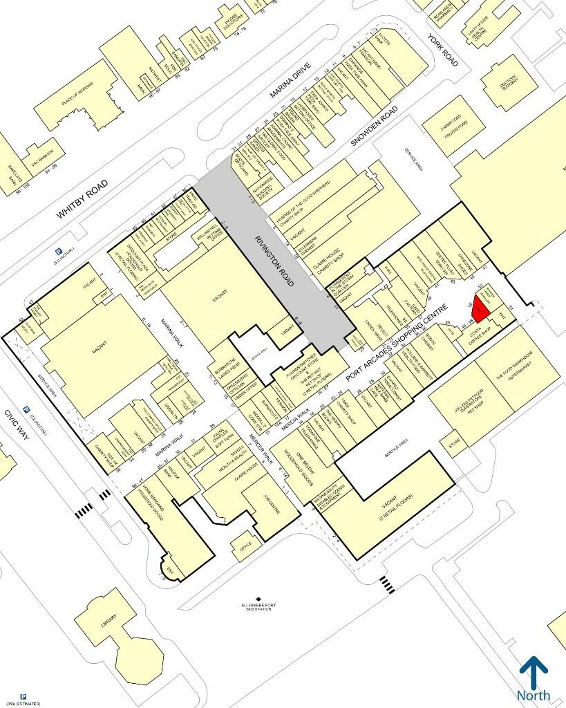
50 Mercer Walk, The Port Arcades, Ellesmere Port, Cheshire, CH65

GBP 0 For Sale

Property Details

Property Type

1,034 sq ft

Description

*** PRICE ON APPLICATION ***

Property Details: • Type: 1,034 sq ft • Tenure: N/A • Floor Area: N/A

Key Features: • Excellent transport links • Anchored by Asda Superstore • The scheme has a busy bus station • 1,200 car parking spaces • Retailers include Boots & Home Bargains • Ground Floor: 1,034 sq ft • New lease for a term to be agreed • RV £15,750 • EPC - D • Please see link below for full details

Location: • Nearest Station: Ellesmere Port Station • Distance to Station: 0.4 miles

Agent Information: • Address: Blackfriars House, St Mary's Parsonage, Manchester, M3 2JA

Full Description: Location: Ellesmere Port is located within the affluent county of Cheshire and benefits from excellent transport links being located near junction 9 of the M53. An Asda superstore is situated adjacent to the Shopping Centre sharing the town's car parking and acting as an anchor and draw to the Scheme. The Scheme benefits from a modern and busy bus station. 200 buses visit the centre per day from the surrounding catchment area. The centre also benefits from 1,200 car parking spaces.

Retailers within the scheme include The Food Warehouse, Wilko, Boots, Jollyes, Home Bargains, Poundstretcher, Select, Holland & Barrett, Vodafone, Specsavers along with Club 3000 Bingo.

Accommodation: The premises comprise the following approximate net internal floor areas:

Demise: Ground Floor: 1,034 sq ft (96.07 sq m)

Rent: Upon Application

Tenure: The unit is offered on a new effectively full repairing and insuring lease for a term to be agreed.

Business Rates: The premises currently has a rateable value of £15,750. For further details visit Gov.uk or contact the business rates department at the local authority.

Service Charge: Available upon request.

EPC: Energy Performance Asset Rating - D

Legal Costs: Each party to be responsible for their own legal and professional costs incurred in this transaction.

VAT: Unless otherwise stated, all prices/rents are quoted exclusive of VAT.

Subject to Contract

Location

Address

50 Mercer Walk, The Port Arcades, Ellesmere Port, Cheshire, CH65

City

Ellesmere Port

Features and Finishes

Excellent transport links, Anchored by Asda Superstore, The scheme has a busy bus station, 1,200 car parking spaces, Retailers include Boots & Home Bargains, Ground Floor: 1,034 sq ft, New lease for a term to be agreed, RV £15,750, EPC - D, Please see link below for full details

Legal Notice

Our comprehensive database is populated by our meticulous research and analysis of public data. MirrorRealEstate strives for accuracy and we make every effort to verify the information. However, MirrorRealEstate is not liable for the use or misuse of the site's information. The information displayed on MirrorRealEstate.com is for reference only.

Real Estate Broker
BARKER PROUDLOVE LIMITED, Manchester
Brokerage
BARKER PROUDLOVE LIMITED, Manchester
Top Tags
Likes

0

Views

54

This website uses cookies to ensure you get the best experience. Learn more