50 Sampson Rd, Mitchell Park SA 5043
Property Details
3
1
House
Description
Property Details: • Type: House
• Bedrooms: 3 • Bathrooms: 1
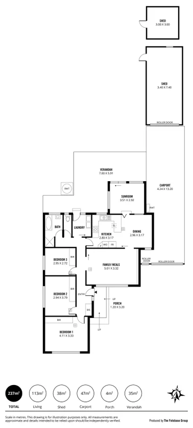
Description: ** WE ARE PLEASED TO ACCEPT APPLICATIONS PRIOR TO THE INSPECTION ONLINE VIA WWW.RESIDENTIALLETTING.COM.AU ** ** ALL ATTENDEES MUST REGISTER TO ATTEND THE OPEN. CLICK ON 'BOOK INSPECTION' TO REGISTER** Step into a lovely refreshed home that combines classic charm with modern updates. Perfectly positioned in the ever-convenient suburb of Mitchell Park, freshly repainted throughout and featuring brand new carpets and window treatments, this inviting residence offers a fresh, light-filled interior ready for you to move in and enjoy. Designed with practical living in mind, the home offers a flexible floor plan with multiple living zones, generous outdoor space, and excellent storage options. At the heart of the home, the kitchen flows seamlessly into the dining and family/meals area, creating a warm and welcoming hub for everyday living. A separate sunroom provides an additional living space, perfect as a home office, reading retreat, or playroom. Step outside and you'll find a large verandah overlooking the backyard, the ideal setting for entertaining or simply relaxing at the end of the day. The expansive carport and substantial shedding offer incredible versatility for storage, hobbies, or workshop use. Property Features: - Freshly repainted throughout - Brand new carpet and window treatments - Three well-proportioned bedrooms, all with built-in robes - Light-filled family/meals area plus separate dining space - Functional kitchen with ample storage and bench space - Additional sunroom offering flexible living options - Central bathroom with separate toilet for convenience - Dedicated laundry with external access - Large verandah perfect for outdoor entertaining - Extensive shedding, including a large shed with roller door access - Spacious carport with drive-through capability Location Highlights: Enjoy the convenience of living just moments from everything you need. This home is ideally situated close to quality schools, public transport, and popular shopping destinations including Westfield Marion for all your retail, dining, and entertainment needs. Commuting is made easy with nearby access to the Seaford railway line, providing a direct route into the Adelaide CBD. For those who enjoy the outdoors, you're just a short drive to the beautiful coastline, including Brighton Beach, perfect for weekend relaxation. This is a fantastic opportunity to secure a freshly updated home in a highly sought-after, well-connected location. Don't miss your chance to make it yours. Disclaimer: All information contained in this advertisement has been gathered from sources we believe to be accurate, however, we cannot guarantee or give any warranty about the information provided and we accept no liability for any errors or omissions. Interested parties should seek independent advice before making any leasing decisions. RLA168235
Location
Address
50 Sampson Rd, Mitchell Park SA 5043
City
Mitchell Park
Features and Finishes
None
Legal Notice
Our comprehensive database is populated by our meticulous research and analysis of public data. MirrorRealEstate strives for accuracy and we make every effort to verify the information. However, MirrorRealEstate is not liable for the use or misuse of the site's information. The information displayed on MirrorRealEstate.com is for reference only.