5025 Four Springs Avenue Unit 111
CAD 875,000
For Sale
MLS: 40729533
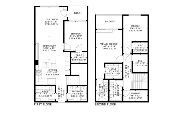
Property Details
Bedrooms
3
Bathrooms
3
Property Type
Row/Townhouse
Description
MLS#: 40729533 Type: Row/Townhouse Living Space: 1436 sqft Year Built: N/A Parking Spaces: 2 Garage Spaces: 2 Basement: None Swimming Pool: No Annual Taxes: $5575 Maintenance Fees: $1191.91
Location
Address
5025 Four Springs Avenue Unit 111
City
Mississauga
Legal Notice
Our comprehensive database is populated by our meticulous research and analysis of public data. MirrorRealEstate strives for accuracy and we make every effort to verify the information. However, MirrorRealEstate is not liable for the use or misuse of the site's information. The information displayed on MirrorRealEstate.com is for reference only.