507/39 Cooper Street, Strathfield NSW 2135
Property Details
1
1
Apartment / Unit / Flat
Description
Property Details: • Type: Apartment / Unit / Flat
• Bedrooms: 1 • Bathrooms: 1
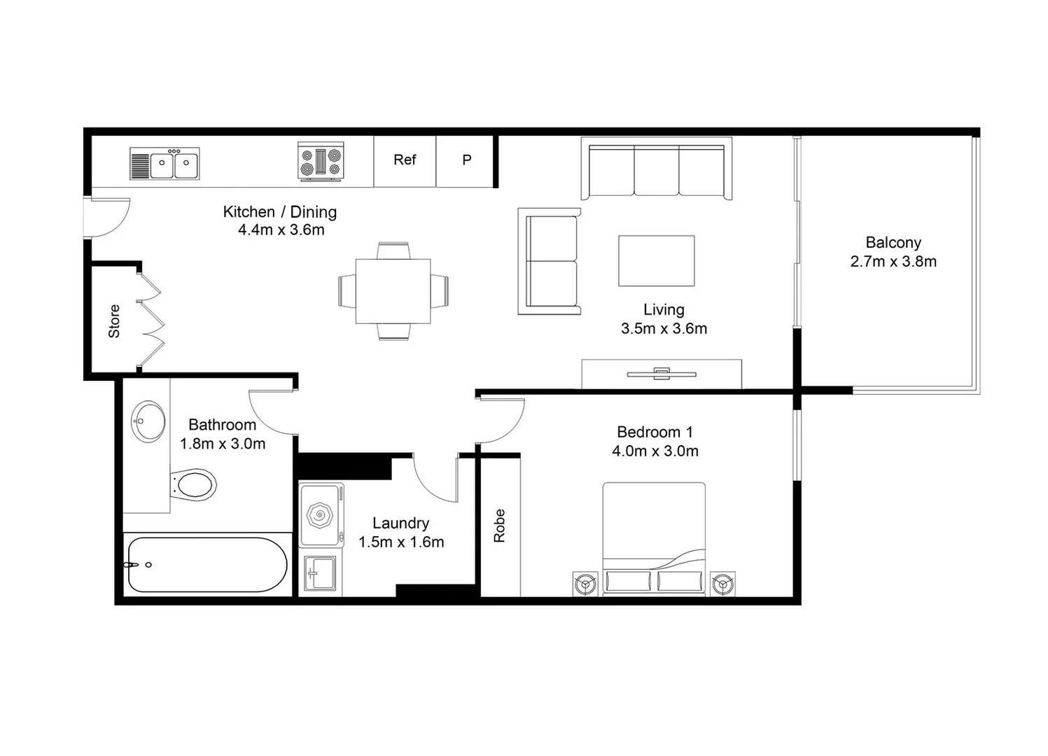
Description: Exceptional Value in a Super Convenient Location This modern and private one-bedroom apartment is situated within a designer security complex in the heart of Strathfield. Boasting abundant natural light and appealing interiors, this apartment is perfectly designed for low-maintenance, modern, and convenient living. It's an ideal choice for a professional single or couple seeking quality and connectivity. Key Apartment Features -- Ultra Modern & Sunny: Features a highly modern finish with a desirable north --- aspect ensuring maximum sunlight. -- Well Maintained: A very well-maintained apartment located on the 5th floor. -- Spacious Living: Generous interiors flow seamlessly onto a sizeable balcony, perfect for relaxing or entertaining. -- Security & Access: Full security building with dual lift access for peace of mind and convenience. -- Gourmet Kitchen: A well-appointed kitchen includes gas cooking. -- Unbeatable Convenience: A short stroll to Strathfield train station, Strathfield Plaza shopping, and a fantastic selection of shops, restaurants, and cafes. -- Excellent Connectivity: Located just moments from both Strathfield and North Strathfield train stations. -- Local Amenities: Close proximity to some of Strathfield's most prestigious and highly sought-after schools. Please note the oven is currently not operational and is excluded from the tenancy. All information contained herein is gathered from sources we believe to be reliable, however we are merely passing this on. We cannot guarantee it's accuracy and any interested persons should rely on their own enquiries.
Location
Address
507/39 Cooper Street, Strathfield NSW 2135
City
Strathfield
Features and Finishes
None
Legal Notice
Our comprehensive database is populated by our meticulous research and analysis of public data. MirrorRealEstate strives for accuracy and we make every effort to verify the information. However, MirrorRealEstate is not liable for the use or misuse of the site's information. The information displayed on MirrorRealEstate.com is for reference only.