615 Boston Avenue, Ventura, CA 93004
Property Details
4
Description
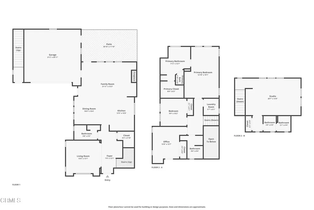
Welcome to 615-617 Boston Avenue, a versatile and inviting property in Ventura offering beautiful living space. The open kitchen features granite counters and plenty of cabinet space. The main house has 3 bedrooms on the second floor with a potential 4th bedroom on the first floor as well as a separate studio over the garage with it's own address and water meter. The main house has 3 full bathrooms plus the bathroom in the studio. The living room and the family room have fireplaces. The primary suite has a luxury bathroom with separate tub and shower, water closet, dual sinks and a walk-in closet. This unique property provides a comfortable layout for a variety of living needs like a mother-in-law quarters, adult children still at home, rental income, gym or private office.Bright and functional living spaces flow seamlessly, creating an ideal setting for both everyday living and entertaining. The patio cover was installed just a couple years ago. The generously sized backyard offers a private outdoor retreat--perfect for relaxing, gardening, or hosting gatherings. Oversized garage has room for your cars and storage. Whether you're looking for a multi-generational home, income potential, or simply extra space to spread out, this unique Ventura property delivers exceptional flexibility and value.
PROPERTY DETAILS: Square Feet: 2515 | Bathrooms: 4
INTERIOR FEATURES: • Appliances: Gas Cooktop, Water Heater, Microwave, Gas Range, Dishwasher • Flooring: Tile, Carpet, Wood • Cooling: Central Air • Heating: Forced Air, Central • Common Walls: No Common Walls • Fireplaces: Living Room, Family Room • Additional Interior Features: Kitchen Island, Breakfast Bar, Open Floorplan, In-Law Floorplan, Granite Counters
EXTERIOR FEATURES: • Parking: 2 Garage Spaces, 2 Parking Spaces, Garage, Driveway, Attached Garage. • Exterior: Stucco • Patio: Patio, Covered • Pool Description: None • Spa: None • Fence: Wood • Additional Exterior/Lot Features: Guest House, Patio
LISTING AGENT: Agent: Gary Schoeffler | Office: BHHS California Properties | Phone: 8053204472 | Email: [email protected]
LISTING INFORMATION: MLS#: V1-35371 | Status: FOR SALE
Location
Address
615 Boston Avenue
City
Ventura
Features and Finishes
Interior Features:
• Appliances: Gas Cooktop, Water Heater, Microwave, Gas Range, Dishwasher
• Flooring: Tile, Carpet, Wood
• Cooling: Central Air
• Heating: Forced Air, Central
• Common Walls: No Common Walls
• Fireplaces: Living Room, Family Room
• Additional Interior Features: Kitchen Island, Breakfast Bar, Open Floorplan, In-Law Floorplan, Granite Counters
Exterior Features:
• Parking: 2 Garage Spaces, 2 Parking Spaces, Garage, Driveway, Attached Garage.
• Exterior: Stucco
• Patio: Patio, Covered
• Pool Description: None
• Spa: None
• Fence: Wood
• Additional Exterior/Lot Features: Guest House, Patio
Legal Notice
Our comprehensive database is populated by our meticulous research and analysis of public data. MirrorRealEstate strives for accuracy and we make every effort to verify the information. However, MirrorRealEstate is not liable for the use or misuse of the site's information. The information displayed on MirrorRealEstate.com is for reference only.