53-55 Wilsden Street, Walkerville SA 5081
Property Details
5
3
House
Description
Property Details: • Type: House
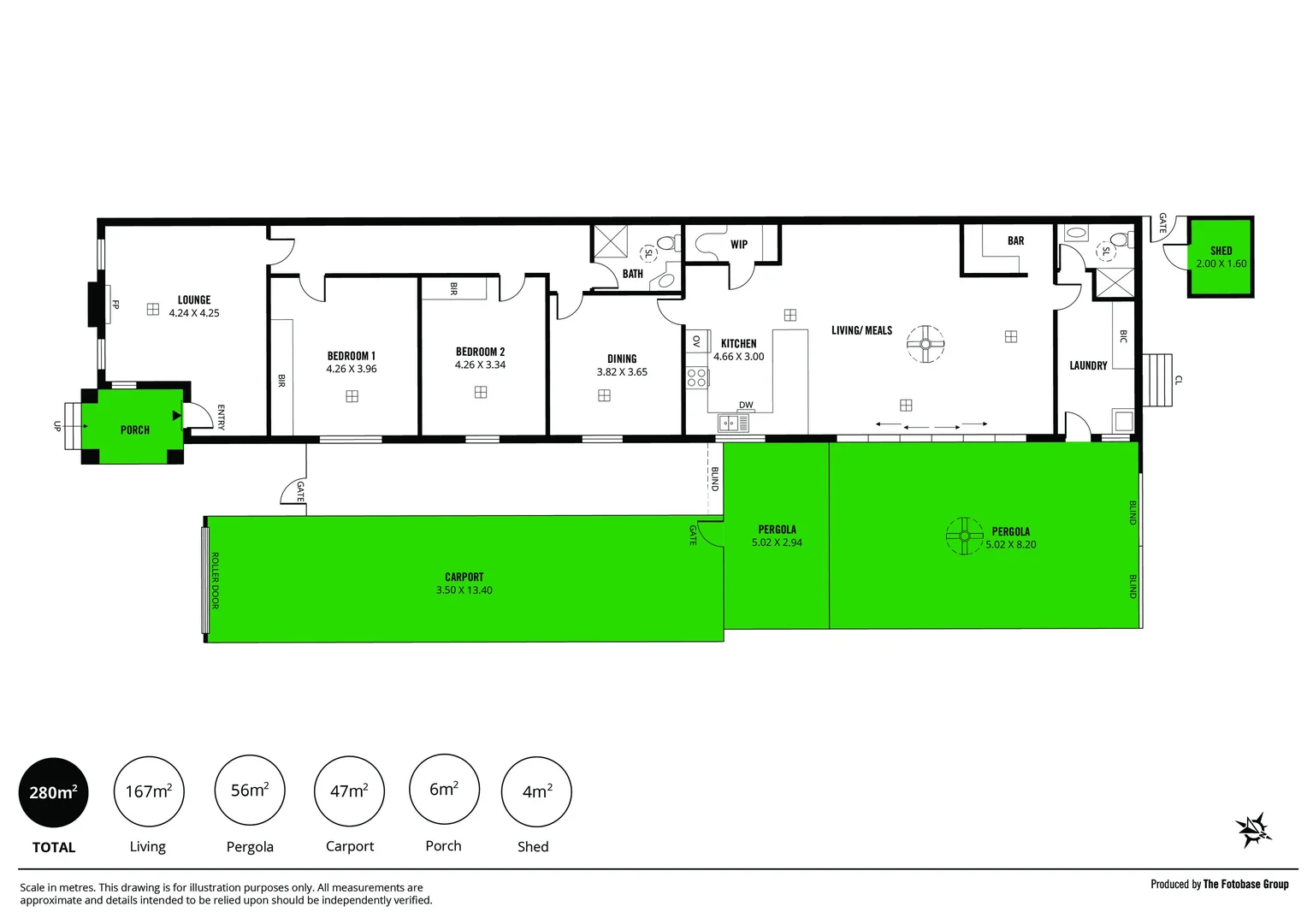
• Bedrooms: 5 • Bathrooms: 3
Description: Discover an extraordinary investment opportunity nestled in the heart of WALKERVILLE. These exceptional properties comprises two Torrens Title Homes set on a generous 800 sqm of premium blue-chip real estate. Buy one or 2 is up to you! 53 Wilsden Street, Walkerville $1,150,000.00 to $1250,000.00 55 Wilsden Street, Walkerville $1,450,000.00 to $1,550,000.00 The dual residence setup provides versatile options. A lucrative potential of holiday rentals or long term. Alternatively, these homes are perfect for accommodating extended family or multi-generational living arrangements. Perfectly positioned just minutes from North Adelaide and the vibrant Adelaide CBD. The serene, tree-lined street is adorned with prestigious homes, enhancing the appeal and enduring value of this remarkable locale. Ideal for savvy investors, local families, interstaters and international buyers alike, these homes cater to a variety of aspirations and lifestyle needs. * How good would 2 rental investments side by side be in this location, set, rent & forget? (Potential rental return 53 Wilsden $650 - $700 per week) (Potential rental return 55 Wilsden $850 - $900 per week) * Already 2 Torrens Title Allotments for future planning * How about live in one and rent other out * What about live in one & parents in the other * How about AIR BNB * What about for your Children, working or studying long term in the city Options are endless indeed. To truly understand the unique possibilities offered by these exceptional properties, a personal inspection is highly recommended. Seize this unparalleled opportunity and make your best move today. Properties like this are extremely rare and highly sought after. For More Details Contact: LARRY COLLIN "Gets The Job Done" 0412 477 993 [email protected] Century 21 The Bay (GLENELG) RLA 204 153 Approximate** All information provided has been obtained from sources we believe to be accurate, however, we cannot guarantee the information is accurate and we accept no liability for any errors or omissions (including but not limited to a property's land size, floor plans and size, building age and condition). Interested parties should make their own enquiries and obtain their own legal advice. Solicitor
Location
Address
53-55 Wilsden Street, Walkerville SA 5081
City
Walkerville
Features and Finishes
None
Legal Notice
Our comprehensive database is populated by our meticulous research and analysis of public data. MirrorRealEstate strives for accuracy and we make every effort to verify the information. However, MirrorRealEstate is not liable for the use or misuse of the site's information. The information displayed on MirrorRealEstate.com is for reference only.