5313 Golden West Ave, Temple City, CA 91780

USD 1850000 For Sale
MLS: WS25258576

Property Details

Bathrooms

4

Description

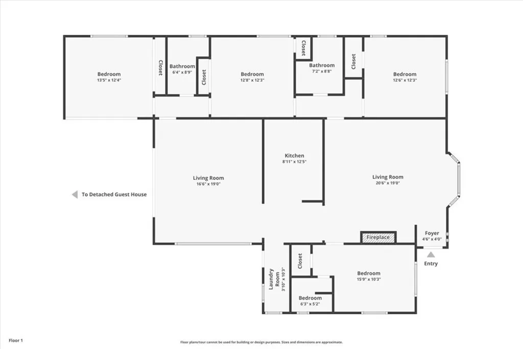
Prime Multi-Home Investment Opportunity - Nearly 14,000 Sq Ft Lot! Welcome to 5313 Golden West Avenue, a rare and high-performing property featuring two detached single-family homes on an expansive 13,939 sq ft lot with two driveways and two separate 2-car garages. This is the ideal setup for investors, developers, or multi-generational buyers seeking flexibility, cash flow, and future upside. The front residence offers 4 large bedrooms and 3 full bathrooms, perfect for a large family or premium rental. The rear home is a spacious 2-bedroom, 1-bath dwelling with its own private yard area and garage - ideal for a second rental, guest home, or extended family. With ample lot size and R2-style potential (buyer to verify), there's room to add ADUs or additional units, expand existing structures, or reimagine the site for higher-density housing. Two separate driveways and garages provide privacy and convenience for both occupants, a rare find in this market. Temple City is centrally located near amenities, major employers, and commuter routes, this property combines immediate income potential with long-term development value. Opportunities like this - featuring two detached homes, dual garages, and a nearly 14,000 sq ft lot - are few and far between. Perfect for investors seeking both cash flow and appreciation upside.

PROPERTY DETAILS: Square Feet: 2556 | Bathrooms: 4

INTERIOR FEATURES: • Flooring: Wood • Heating: Central • Common Walls: No Common Walls • Fireplaces: Living Room • Additional Interior Features: Open Floorplan, Recessed Lighting, Storage

EXTERIOR FEATURES: • Parking: 4 Garage Spaces, 4 Parking Spaces, Attached Garage. • Patio: Patio, Porch • Pool Description: None • Spa: None • Lot View: Mountain • Additional Exterior/Lot Features: Garden, Landscaped, Patio, Porch Front Yard, Garden, Landscaped, Rectangular Lot

LISTING AGENT: Agent: Daniel Venti | Office: ANTHONY VENTI REALTORS | Phone: 6262539730 | Email: [email protected]

LISTING INFORMATION: MLS#: WS25258576 | Status: Pending

Location

Address

5313 Golden West Ave

City

Temple City

Features and Finishes

Interior Features:

• Flooring: Wood

• Heating: Central

• Common Walls: No Common Walls

• Fireplaces: Living Room

• Additional Interior Features: Open Floorplan, Recessed Lighting, Storage

Exterior Features:

• Parking: 4 Garage Spaces, 4 Parking Spaces, Attached Garage.

• Patio: Patio, Porch

• Pool Description: None

• Spa: None

• Lot View: Mountain

• Additional Exterior/Lot Features: Garden, Landscaped, Patio, Porch Front Yard, Garden, Landscaped, Rectangular Lot

Legal Notice

Our comprehensive database is populated by our meticulous research and analysis of public data. MirrorRealEstate strives for accuracy and we make every effort to verify the information. However, MirrorRealEstate is not liable for the use or misuse of the site's information. The information displayed on MirrorRealEstate.com is for reference only.

Real Estate Broker
DANIEL VENTI
Brokerage
ANTHONY VENTI REALTORS
Likes

0

Views

13

This website uses cookies to ensure you get the best experience. Learn more