539 Melton Highway, Sydenham VIC 3037
Property Details
Vacant Land
Description
Property Details: • Type: Vacant Land
• Bedrooms: 0 • Bathrooms: 0
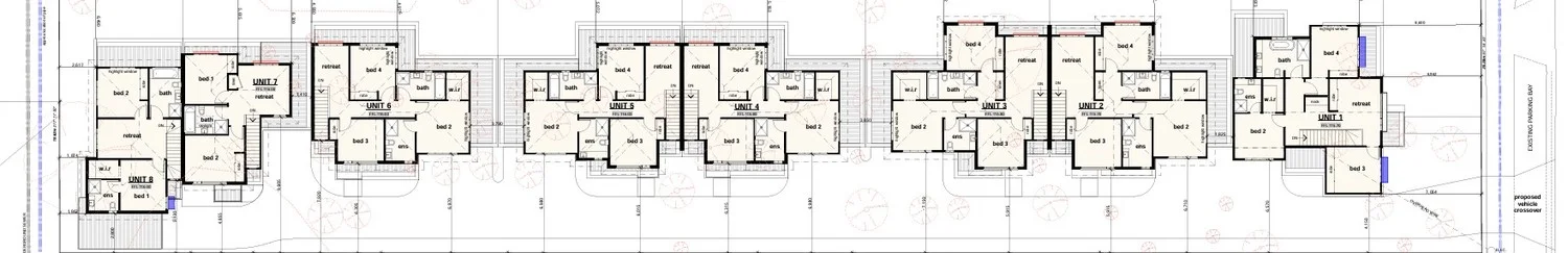
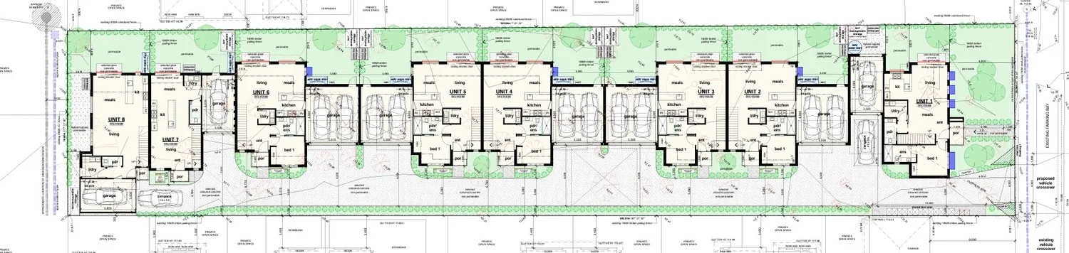
Description: * Site will be sold with Approved Planning Permit and Stamped Working Drawings * 6 x 4 Bedroom Dwellings (5 with double garage) and 2 x 2 bedroom dwellings * Amazing central location, within Waking Distance to Watergardens Shopping Centre and Train Station * Planning Permit Approved * Approximately 2010m2 of Prime Land An outstanding residential development opportunity positioned along the Melton Highway corridor in the heart of Sydenham. The subject site comprises approximately 2,010m2 of land and is offered with an approved planning permit and stamped working drawings for a well-designed multi-dwelling residential development. The approved scheme allows for the construction of eight dwellings, comprising six (6) four-bedroom townhouses and two (2) two-bedroom dwellings, providing an attractive mix suited to both owner-occupiers and investors. The configuration capitalises on the site's generous landholding and frontage, delivering an efficient and market-ready outcome. Located within close proximity to key local amenities, transport links, schools, retail precincts and major arterials, the site offers strong appeal in a well-established and growing residential area. This permit-approved development presents an excellent opportunity for developers seeking a turnkey project in Melbourne's north-west growth corridor. Key Highlights: * Approximate land area: 2,010sqm * Planning permit approved for 8 dwellings * Dwelling mix: 6 x 4-bedroom and 2 x 2-bedroom * Strategic Sydenham location with strong buyer and rental demand * Ready to proceed development opportunity For a full set of plans and permit information, please contact Joseph today!
Location
Address
539 Melton Highway, Sydenham VIC 3037
City
Sydenham
Features and Finishes
None
Legal Notice
Our comprehensive database is populated by our meticulous research and analysis of public data. MirrorRealEstate strives for accuracy and we make every effort to verify the information. However, MirrorRealEstate is not liable for the use or misuse of the site's information. The information displayed on MirrorRealEstate.com is for reference only.