547 DARWEN ROAD, EGERTON, BOLTON, GREATER MANCHESTER, BL7 9ED

GBP 465000 For Sale

Property Details

Bedrooms

7

Bathrooms

4

Property Type

Block of Apartments

Description

Property Details: • Type: Block of Apartments • Tenure: N/A • Floor Area: N/A

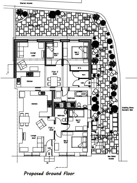
Key Features: • Former public house converted to 4 apartments in 2016 • New part 2 and part single storey extension to rear • Development completed in 2016 and refurbished to a high standard with full building regulations and planning approval from Bolton MBC • Property fronts Darwen Road (B6472), close to Bromley Cross village centre • Sale Price £465,000 • Rental income £34,200 per annum • No VAT applicable • 232.50 sq m (2,500 sq ft) total accommodation

Location: • Nearest Station: N/A • Distance to Station: N/A

Agent Information: • Address: 179 Chorley New Road Bolton BL1 4QZ

Full Description: A former public house that was converted to 4 apartments in 2016 incorporating a new extension to the rear, part 2 storey and part single storey.There are 3 x 2 bed apartments, one with some rear external amenity space, and one x 1 bed apartment in the rear 2 storey extension at first floor.Each apartment has their own access door and the only common areas are the external access stairs, keystores and electric and water meter cupboards to one side. There is no service charge applicable to the apartments and all tenants have their own meters.The development was completed in 2016 and refurbished to a high standard with full building regulation approval and planning approval from Bolton MBC.BrochuresBrochure 1

Location

Address

547 DARWEN ROAD, EGERTON, BOLTON, GREATER MANCHESTER, BL7 9ED

City

Egerton

Features and Finishes

Former public house converted to 4 apartments in 2016, New part 2 and part single storey extension to rear, Development completed in 2016 and refurbished to a high standard with full building regulations and planning approval from Bolton MBC, Property fronts Darwen Road (B6472), close to Bromley Cross village centre, Sale Price £465,000, Rental income £34,200 per annum, No VAT applicable, 232.50 sq m (2,500 sq ft) total accommodation

Legal Notice

Our comprehensive database is populated by our meticulous research and analysis of public data. MirrorRealEstate strives for accuracy and we make every effort to verify the information. However, MirrorRealEstate is not liable for the use or misuse of the site's information. The information displayed on MirrorRealEstate.com is for reference only.

Real Estate Broker
Lamb & Swift Commercial, Bolton
Brokerage
Lamb & Swift Commercial, Bolton
Top Tags
Likes

0

Views

34

This website uses cookies to ensure you get the best experience. Learn more