55 James Harrison Street, Dunlop ACT 2615
Property Details
4
2
House
Description
Property Details: • Type: House
• Bedrooms: 4 • Bathrooms: 2
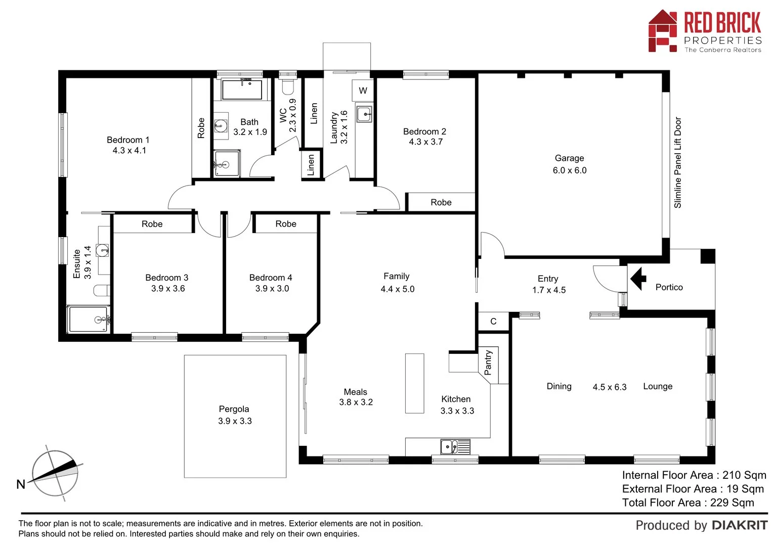
Description: Positioned in one of Belconnen's most family-friendly suburbs, this spacious and beautifully presented home offers the perfect blend of comfort, functionality, and lifestyle convenience. Built in 2009 and set on a generous 525m block, the residence provides approximately 192m of internal living space, complemented by a 38m double garage. Perfectly positioned opposite open farmland with uninterrupted views to the Brindabella Range, the home enjoys breathtaking sunrises and sunsets. The early morning light rising over the Brindabellas creates an impressive array of colours that reflect across the valley - a truly spectacular way to begin each day. Freshly painted internally and thoughtfully designed for modern family living, the home delivers multiple living areas and seamless indoor-outdoor flow - ideal for both relaxed day-to-day living and entertaining family and friends. Inside, you will find four spacious bedrooms fitted with generous built-in wardrobes for convenient storage, including a generous master suite complete with a private ensuite. The main bathroom features a bathtub and a separate toilet, making it practical for growing families. At the heart of the home is the light-filled open-plan kitchen, meals, and family area - a welcoming central hub designed for connection and comfort. The kitchen is well-equipped with a gas cooktop, electric oven, and dishwasher, providing both functionality and convenience. Separate lounge and dining rooms provide additional versatility, whether hosting formal gatherings or enjoying quiet evenings at home. A dedicated laundry includes built-in wall cupboards for generous storage and a built-in dryer for added practicality. Sliding doors open to a covered outdoor pergola framed by neatly edged garden beds, creating the perfect setting for weekend barbecues, children's playtime, or simply unwinding outdoors in the secure backyard. Enjoy year-round comfort with an energy-efficient split-system air conditioning and heating unit, perfectly suited to Canberra's changing seasons. Live sustainably with a fully installed 1600W Sharp solar system to key power bills at bay. For complete peace of mind, the home is equipped with a security system, CCTV cameras, Crimsafe screens on the sliding doors, and electric shutters on the front three windows. Located approximately 15km from Canberra's CBD, Dunlop is highly regarded for its peaceful atmosphere, community feel, and access to nature. Woolworths Dunlop is just moments away for everyday shopping convenience, while the stunning Dunlop Grasslands Nature Reserve offers walking trails and local wildlife right at your doorstep. Parks, bike paths, and recreational facilities are woven throughout the suburb, delivering an enviable balance of nature and convenience. Property Key Features Four spacious bedrooms with built-in wardrobes, including a master with an ensuite Two bathrooms, including a separate toilet Double garage (approx. 38m) with secure parking and storage Open-plan kitchen, meals, and family area Separate lounge and dining rooms Gas cooktop, electric oven, and dishwasher Dedicated laundry with built-in cupboards and dryer Energy-efficient split-system heating and cooling 1600W Sharp solar system Security system with CCTV, Crimsafe screens & electric shutters Covered outdoor pergola with neatly edged garden beds Freshly painted interior Opposite open farmland with Brindabella Range views Built in 2009 Land size: approximately 525m Internal living: approximately 192m EER: 4.5 Estimated rental potential: $925-$950 per week 55 James Harrison Street, Dunlop presents an outstanding opportunity to secure a quality home in a vibrant yet tranquil neighbourhood. Contact us today to arrange your inspection. Whilst care has been taken in the preparation of this information, Red Brick Properties makes no guarantee as to its accuracy. Interested parties are encouraged to make their own enquiries.
Location
Address
55 James Harrison Street, Dunlop ACT 2615
City
Dunlop
Features and Finishes
None
Legal Notice
Our comprehensive database is populated by our meticulous research and analysis of public data. MirrorRealEstate strives for accuracy and we make every effort to verify the information. However, MirrorRealEstate is not liable for the use or misuse of the site's information. The information displayed on MirrorRealEstate.com is for reference only.