56 Kerr Street, Fitzroy VIC 3065
Property Details
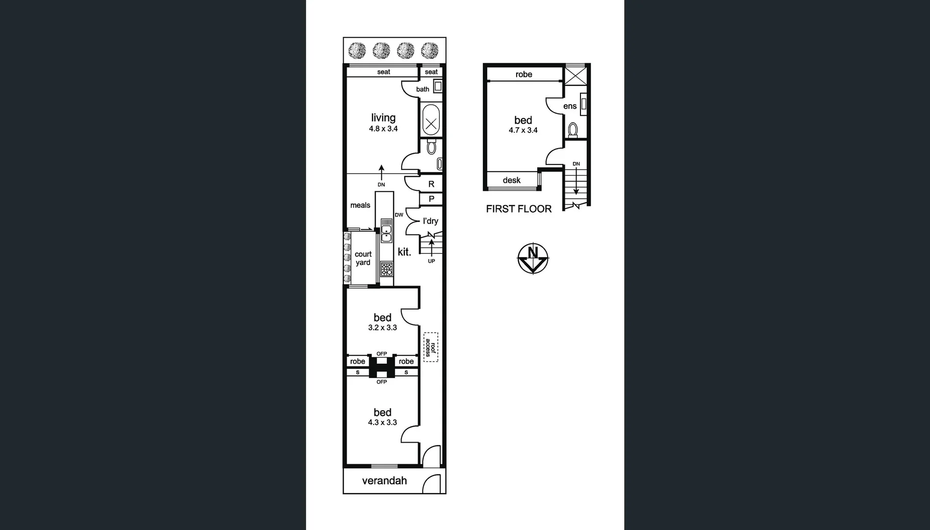
3
2
House
Description
Property Details: • Type: House
• Bedrooms: 3 • Bathrooms: 2
Description: Please note rent is paid monthly - $5432.00 per calendar month ($1250 per week) ** PLEASE REGISTER TO INSPECT ** This well-designed 3-bedroom home offers spacious open living and generous bedrooms. The light-filled downstairs living area connects seamlessly to a private courtyard, while the kitchen features Miele appliances, gas cooking, and a dishwasherperfect for everyday living and entertaining. Comfort is assured year-round with split systems, hydronic heating, and polished concrete floors with underfloor heating. Bedrooms include built-in storage, new carpets, and stylish finishes, with the main bedroom upstairs featuring an ensuite and abundant natural light. Positioned just 100m from Brunswick Street and only 10 minutes to the CBD, youll enjoy cafs, restaurants, and local highlights like the Fitz and Rose Street Markets right at your doorstep.
Location
Address
56 Kerr Street, Fitzroy VIC 3065
City
Fitzroy
Features and Finishes
None
Legal Notice
Our comprehensive database is populated by our meticulous research and analysis of public data. MirrorRealEstate strives for accuracy and we make every effort to verify the information. However, MirrorRealEstate is not liable for the use or misuse of the site's information. The information displayed on MirrorRealEstate.com is for reference only.