518 W 213th St, Carson, CA 90745
Property Details
4
Description
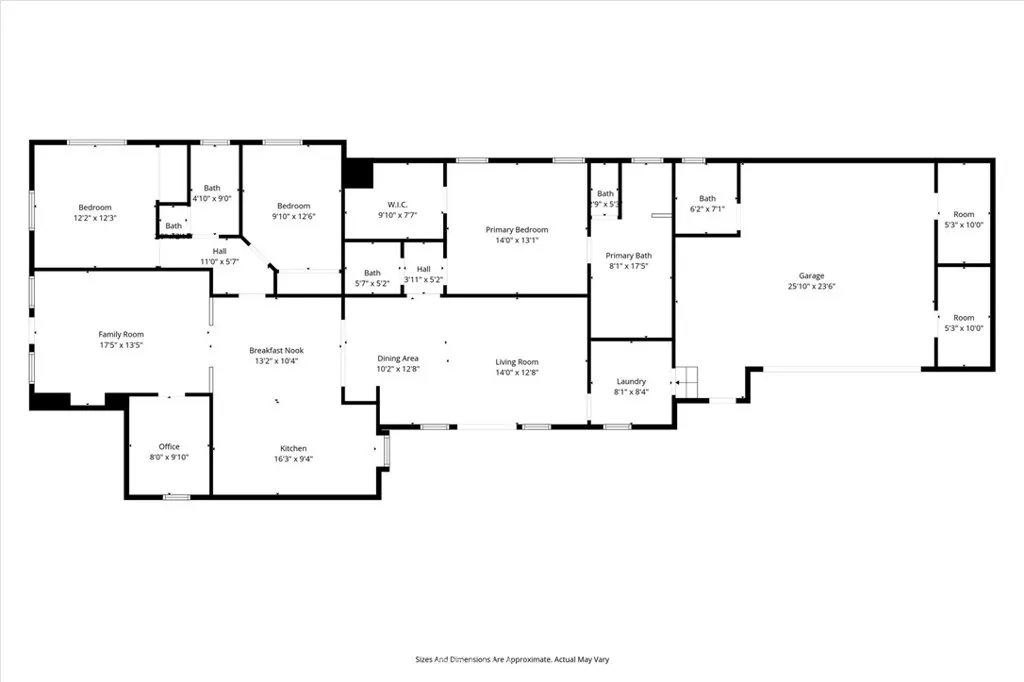
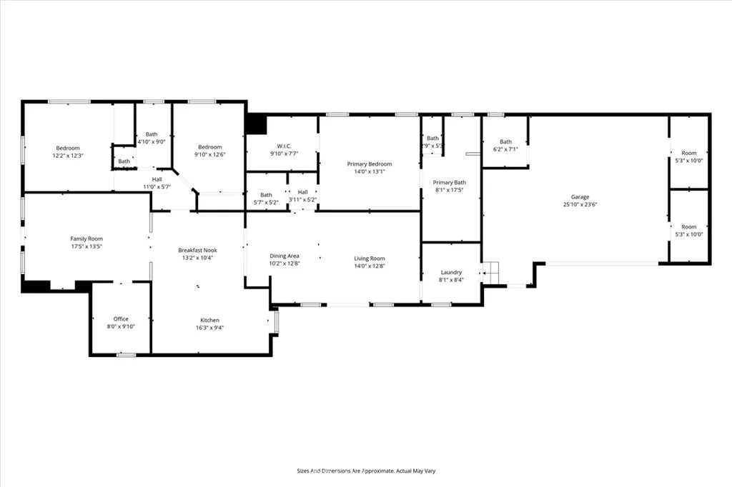
Tucked into a quiet Carson neighborhood, this Southwest-style single-family home is a stand out beauty! Earthy stucco finishes, clean lines, and subtle desert-inspired details set the tone from the moment you arrive, and the enclosed courtyard entry offers a perfect spot to relax with family and friends. Attention to detail can be found in every aspect of this custom built home. Inside, the home opens to a light-filled layout starting with a cozy living room which allows a clear line of sight across the entire expanse of this spacious home. With custom niches, archways and its many architectural details, you won't know what to look at first. A dedicated office space off the main living room offers a quiet space for working from home. A spacious dining room adjoins the well-appointed galley kitchen, with abundant cabinetry, custom "chili pepper" glass inserts, stainless appliances and a garden window. Saltillo tile adds to the warmth and authenticity of the southwest vibe. Also found in this "wing" of the home are two spacious bedrooms and a full bath. Beyond the dining area is a HUGE family room with high ceilings and beautiful laminate flooring, ceiling fans and french doors leading to a covered patio. The primary suite is a true retreat - bring the king-size bed- it will definitely fit in here! Vaulted ceilings add to the volume of the space which offers built-in shelving, a spacious walk-in closet with custom built-ins, and an en-suite bathroom that will "knock your socks off"! There is a dual-sink vanity, a HUGE soaking tub, a spacious walk-in STEAM SHOWER and a separate water closet. But we're not done yet! One of the most exciting opportunities lies in the attached 835-square-foot garage, which offers opportunity galore! Whether you're thinking of a workshop, home gym, or exploring ADU potential for additional income or multi-generational living, the size and layout of this space open the door to endless possibilities. A "kitchen" area offers custom cabinetry including a large island, and can easily be equipped with a sink and stove. A 3/4 bath is already in place, and there are two large "storage closets" as well as overhead storage. The original 1-car garage is still in place as well. A long gated driveway offers space for all your cars, toys or RV! Set in a peaceful pocket of Carson, this home offers a rare combination of style, space, and flexibility - perfect for buyers looking for something with striking personality and room to grow.
PROPERTY DETAILS: Square Feet: 1954 | Bathrooms: 4
INTERIOR FEATURES: • Appliances: Disposal, Microwave, Trash Compactor, Gas Range, Dishwasher • Cooling: Central Air, Ceiling Fan(s) • Heating: Central • Plumbing: Gas Water Heater • Common Walls: No Common Walls • Doors/Windows: Garden Window(s), Double Pane Windows • Fireplaces: None • Additional Interior Features: Walk-In Closet(s), Ceiling Fan(s), Recessed Lighting, Tile Counters, Cathedral Ceiling(s)
EXTERIOR FEATURES: • Parking: 1 Garage Spaces, 1 Parking Spaces, Attached Garage. • Pool Description: None • Additional Exterior/Lot Features: Front Yard
LISTING AGENT: Agent: Karen Anderson | Office: Keller Williams Luxury | Phone: 3102512883 | Email: [email protected]
LISTING INFORMATION: MLS#: PV26055616 | Status: Pending
Location
Address
518 W 213th St
City
Carson
Features and Finishes
Interior Features:
• Appliances: Disposal, Microwave, Trash Compactor, Gas Range, Dishwasher
• Cooling: Central Air, Ceiling Fan(s)
• Heating: Central
• Plumbing: Gas Water Heater
• Common Walls: No Common Walls
• Doors/Windows: Garden Window(s), Double Pane Windows
• Fireplaces: None
• Additional Interior Features: Walk-In Closet(s), Ceiling Fan(s), Recessed Lighting, Tile Counters, Cathedral Ceiling(s)
Exterior Features:
• Parking: 1 Garage Spaces, 1 Parking Spaces, Attached Garage.
• Pool Description: None
• Additional Exterior/Lot Features: Front Yard
Legal Notice
Our comprehensive database is populated by our meticulous research and analysis of public data. MirrorRealEstate strives for accuracy and we make every effort to verify the information. However, MirrorRealEstate is not liable for the use or misuse of the site's information. The information displayed on MirrorRealEstate.com is for reference only.