23600 Dart Drive, Tehachapi, CA 93561

USD 598870 For Sale
MLS: SR25259027

Property Details

Bathrooms

3

Description

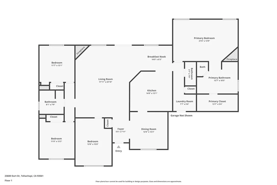
**Luxury Mountain Retreat with PAID Solar & Tesla Battery Backup!** Nestled behind the private gates of the prestigious Bear Valley Springs, this mountain retreat perfectly blends luxury, relaxation, and country charm. As you approach, you'll appreciate the beautiful curb appeal and modern aesthetics, along with a heated workshop that can easily be converted into an ADU. Inside, you'll find a formal dining area that can be repurposed, and a stunning family room with a cozy fireplace and double glass doors opening to the backyard. The upgraded kitchen boasts a breakfast bar, granite countertops, and modern appliances, making it perfect for any home chef. The home features a desirable split floor plan: the master retreat is on one side, offering privacy and tranquility, while the den or office space, along with the additional bedrooms, is on the opposite side, ensuring a perfect balance of space and functionality. The master suite is a true sanctuary, featuring a luxurious steam shower, a soaking tub, and a serene atmosphere for ultimate relaxation. Outside, you'll enjoy a beautiful covered patio, a spa, and an outdoor kitchen, along with a fire pit for cozy evenings. The backyard also features a secure dog run on the side, perfect for your small pets. Additionally, there are two more sheds and a chicken coop, offering even more versatility. The property is equipped with solar panels and a Tesla battery backup, ensuring energy efficiency and sustainability. You'll have plenty of room for all your toys, whether it's horses, goats, chickens, dogs, RVs, boats, or any beloved pets and gear. Plus, the community offers a nearby school, parks, wineries, and even a golf course, making it the perfect blend of tranquility and convenience.

PROPERTY DETAILS: Square Feet: 2256 | Bathrooms: 3

INTERIOR FEATURES: • Cooling: Central Air • Common Walls: No Common Walls • Fireplaces: Family Room • Energy: Solar

EXTERIOR FEATURES: • Parking: 2 Garage Spaces, 2 Parking Spaces, Attached Garage. • Pool Description: None • Lot View: Mountain • Additional Exterior/Lot Features: Workshop

LISTING AGENT: Agent: Charla Gonzales | Office: Sync Brokerage, Inc. | Phone: 6616756741 | Email: [email protected]

LISTING INFORMATION: MLS#: SR25259027 | Status: Pending

Location

Address

23600 Dart Drive

City

Tehachapi

Features and Finishes

Interior Features:

• Cooling: Central Air

• Common Walls: No Common Walls

• Fireplaces: Family Room

• Energy: Solar

Exterior Features:

• Parking: 2 Garage Spaces, 2 Parking Spaces, Attached Garage.

• Pool Description: None

• Lot View: Mountain

• Additional Exterior/Lot Features: Workshop

Legal Notice

Our comprehensive database is populated by our meticulous research and analysis of public data. MirrorRealEstate strives for accuracy and we make every effort to verify the information. However, MirrorRealEstate is not liable for the use or misuse of the site's information. The information displayed on MirrorRealEstate.com is for reference only.

Real Estate Broker
Charla Gonzales
Brokerage
Sync Brokerage, Inc.
Likes

0

Views

22

This website uses cookies to ensure you get the best experience. Learn more