30th Ste Vic Avenue, Lancaster, CA 93535
Property Details
2
Description
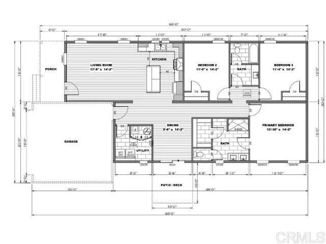
New Construction on Massive 1/2 acre lot with NO HOA & Special Financing Available!! This home features an open floor plan with 2 car garage -- lot has enough space to lot split, add another home, add 2 ADUs a pool, your toys, a garden, and more! Smart home features Low E Argon Windows, Hi R Value (Energy Efficient) - Close to Antelope Valley College, Lancaster National Soccer Center, Shopping, Community Pools & Fitness & More! Note: current parcel is 2 acres and parcel map is pending lot split into 24,163sf lot. Images are of previous built homes with same floor plan.
PROPERTY DETAILS: Square Feet: 1620 | Bathrooms: 2
INTERIOR FEATURES: • Cooling: Central Air • Heating: None • Common Walls: No Common Walls • Fireplaces: Family Room • Additional Interior Features: Walk-In Closet(s)
EXTERIOR FEATURES: • Parking: 2 Garage Spaces, 2 Parking Spaces, Attached Garage. • Pool Description: Community, See Remarks • Lot View: Desert View • Lot Dimensions: 146x331 • Zoning: Residential • Structural Condition: Under Construction, New Construction • Additional Exterior/Lot Features: Rectangular Lot, Level, Desert Back, Desert Front
LISTING AGENT: Agent: Phil Georgiades | Office: Phillip Georgiades | Phone: 8583677114 | Email: [email protected]
LISTING INFORMATION: MLS#: PTP2602509 | Status: FOR SALE
Location
Address
30th Ste Vic Avenue
City
Lancaster
Features and Finishes
Interior Features:
• Cooling: Central Air
• Heating: None
• Common Walls: No Common Walls
• Fireplaces: Family Room
• Additional Interior Features: Walk-In Closet(s)
Exterior Features:
• Parking: 2 Garage Spaces, 2 Parking Spaces, Attached Garage.
• Pool Description: Community, See Remarks
• Lot View: Desert View
• Lot Dimensions: 146x331
• Zoning: Residential
• Structural Condition: Under Construction, New Construction
• Additional Exterior/Lot Features: Rectangular Lot, Level, Desert Back, Desert Front
Legal Notice
Our comprehensive database is populated by our meticulous research and analysis of public data. MirrorRealEstate strives for accuracy and we make every effort to verify the information. However, MirrorRealEstate is not liable for the use or misuse of the site's information. The information displayed on MirrorRealEstate.com is for reference only.