59B Blackshaws Road, Newport VIC 3015
Property Details
5
4
Townhouse
Description
Property Details: • Type: Townhouse
• Bedrooms: 5 • Bathrooms: 4
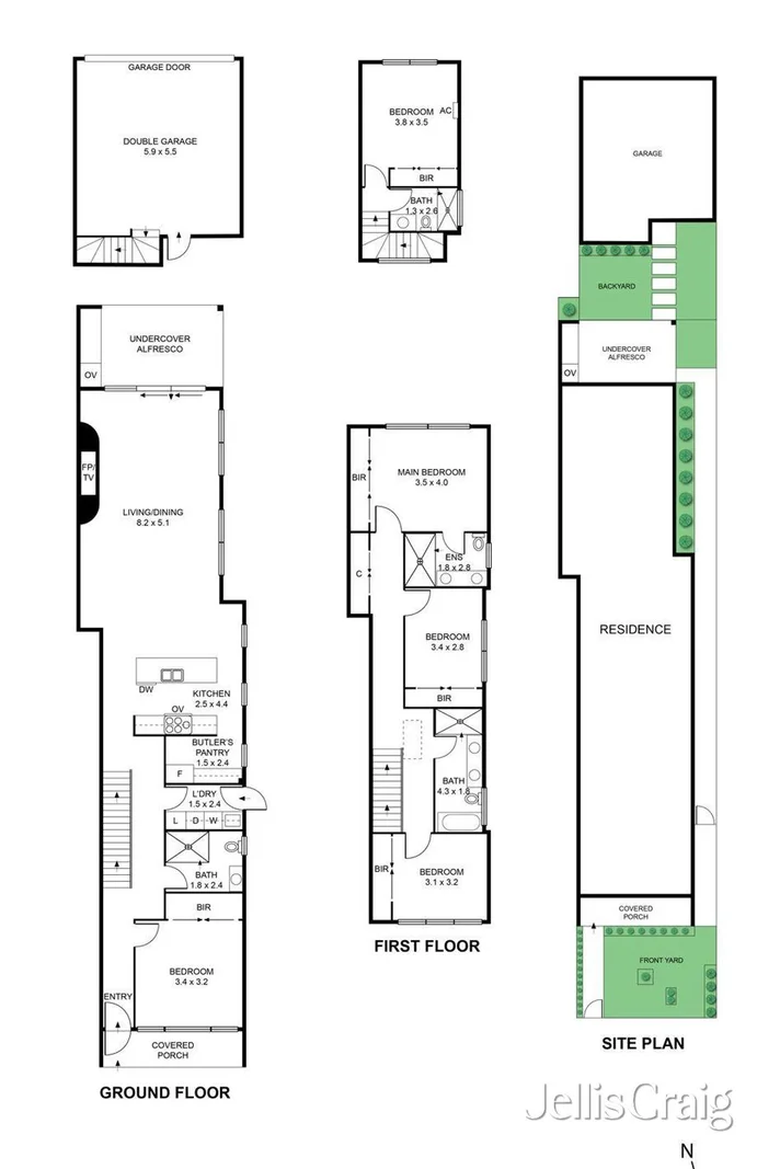
Description: Stunning to look at, designed so that the aesthetics set the tone for the dimensions, this landmark home takes family traditions as its starting point and then elevates luxury to a whole new level. The distinctive lines introduce superb downstairs spaces including a living/dining area accompanied by a sophisticated kitchen with a butler's pantry. A wall of windows creates a seamless link to the alfresco pavilion and its outdoor kitchen a brilliant partner to the indoor proportions while the bedroom and bathroom above the garage adds fabulous flexibility to the principal accommodation of four bedrooms and three bathrooms. The downstairs bedroom and bathroom precede three further bedrooms above and two additional bathrooms, including the main bedroom's sumptuous ensuite. Every room creates a memorable mood, each spaces leaves a lasting impression, the overall effect is unforgettable. The double garage ensures total convenience complements market leading luxury moments from Newport Lakes Reserve, schools, shopping and transport options.
Location
Address
59B Blackshaws Road, Newport VIC 3015
City
Newport
Legal Notice
Our comprehensive database is populated by our meticulous research and analysis of public data. MirrorRealEstate strives for accuracy and we make every effort to verify the information. However, MirrorRealEstate is not liable for the use or misuse of the site's information. The information displayed on MirrorRealEstate.com is for reference only.