6/4-6 WILSON STREET, Wodonga VIC 3690
Property Details
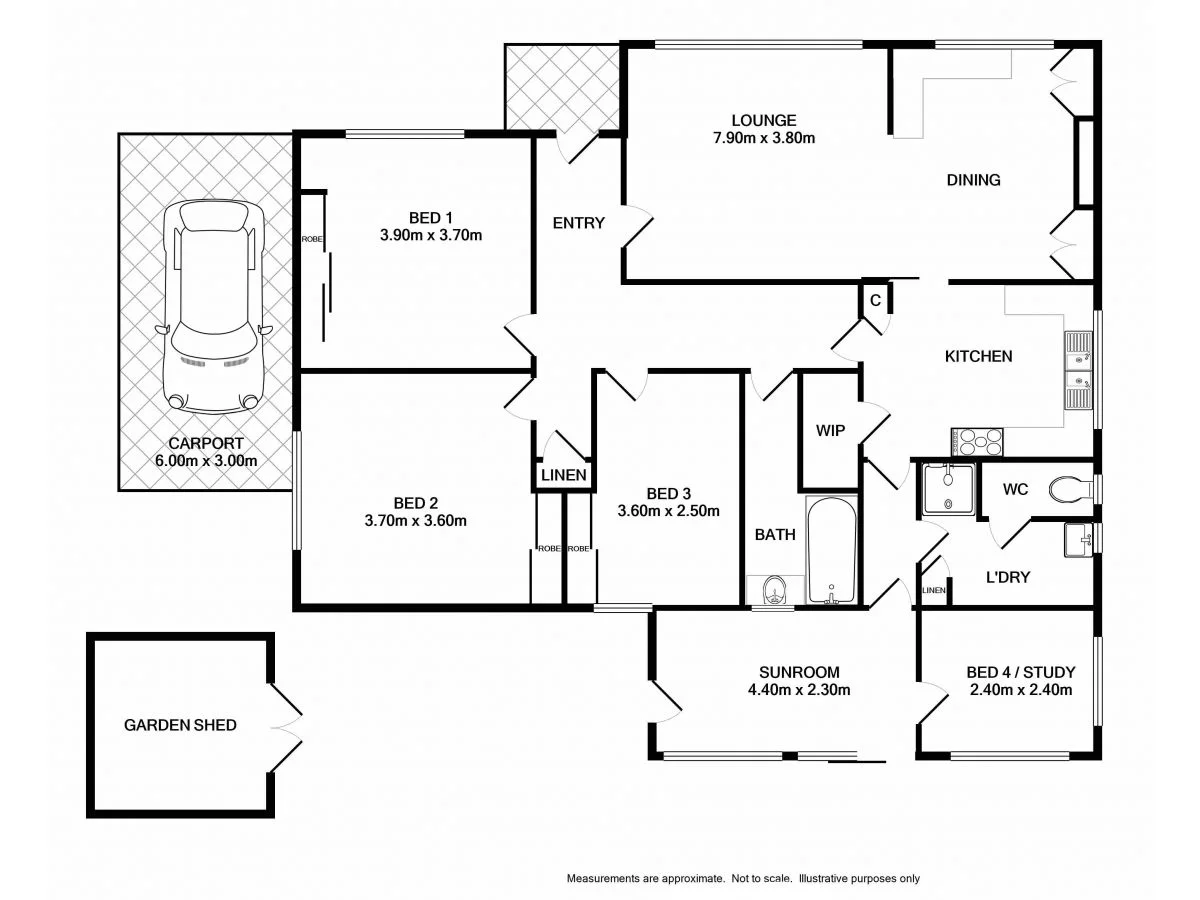
3
1
House
Description
Property Details: • Type: House
• Bedrooms: 3 • Bathrooms: 1
Description: Live moments from everything in central Wodonga. This beautifully restored character home blends timeless charm with modern comfort, all within easy walking distance to cafés, parks, medical facilities, transport and convenience stores. Property Features: - Three generous bedrooms, including a master with an extensive built-in robe - Inviting lounge room with polished timber floors, timber sash windows and a delightful built-in dining bench seat - Gas wood-look heater adding both charm and comfort - Rear sunroom ideal as a second living area - Separate study with large windows for abundant natural light perfect for working from home - Well-maintained kitchen featuring a 900mm freestanding oven for the avid cook - Two showers one in the main bathroom and another in the fully renovated laundry - Multiple reverse cycle units plus new ducted gas heating for year-round comfort This is a rare opportunity to secure a character-filled home in one of Wodonga's most sought-after central locations.
Location
Address
6/4-6 WILSON STREET, Wodonga VIC 3690
City
Wodonga
Features and Finishes
None
Legal Notice
Our comprehensive database is populated by our meticulous research and analysis of public data. MirrorRealEstate strives for accuracy and we make every effort to verify the information. However, MirrorRealEstate is not liable for the use or misuse of the site's information. The information displayed on MirrorRealEstate.com is for reference only.