6 Bransgrove Street, Preston VIC 3072
Property Details
4
1
House
Description
Property Details: • Type: House
• Bedrooms: 4 • Bathrooms: 1
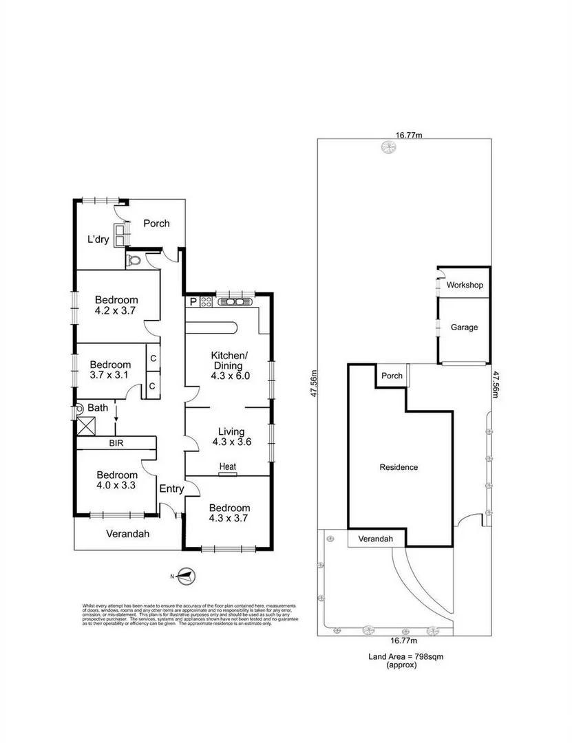
Description: Located on the south side of Bell Street Boasts a rather larger than usual four bedroom double fronted weatherboard home. Features include spacious rooms, high ceilings, and a wide side drive to the Brick garage ideally located close to shops, the school, the local park, and various transport options. Comprising: -Four generous size bedrooms -Light-filled bathroom -Generous dining and living area -Huge kitchen -Separate toilet -Great size rear yard -Off-street parking -Heating and cooling *INSPECTIONS MAY BE CANCELLED UP TO 24 HOURS PRIOR WITHOUT NOTICE. YOU MUST REGISTER TO VIEW THIS PROPERTY AT AN OPEN FOR INSPECTION AND TO BE NOTIFIED OF ANY CHANGES OR CANCELLATIONS* LOVE & CO NO.1 FOR PROPERTY MANAGEMENT
Location
Address
6 Bransgrove Street, Preston VIC 3072
City
Preston
Legal Notice
Our comprehensive database is populated by our meticulous research and analysis of public data. MirrorRealEstate strives for accuracy and we make every effort to verify the information. However, MirrorRealEstate is not liable for the use or misuse of the site's information. The information displayed on MirrorRealEstate.com is for reference only.