6 Chimney Heights Road, Stieglitz TAS 7216
Property Details
6
4
House
Description
Property Details: • Type: House
• Bedrooms: 6 • Bathrooms: 4
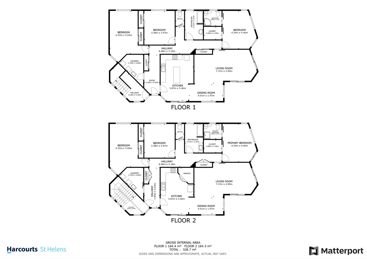
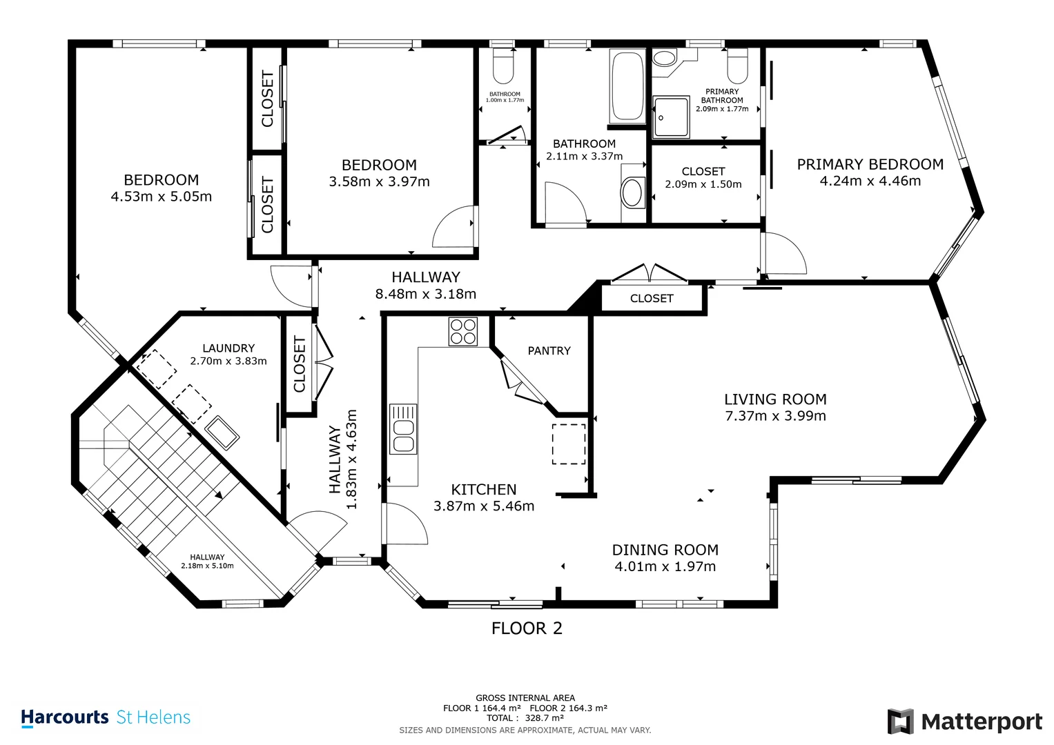
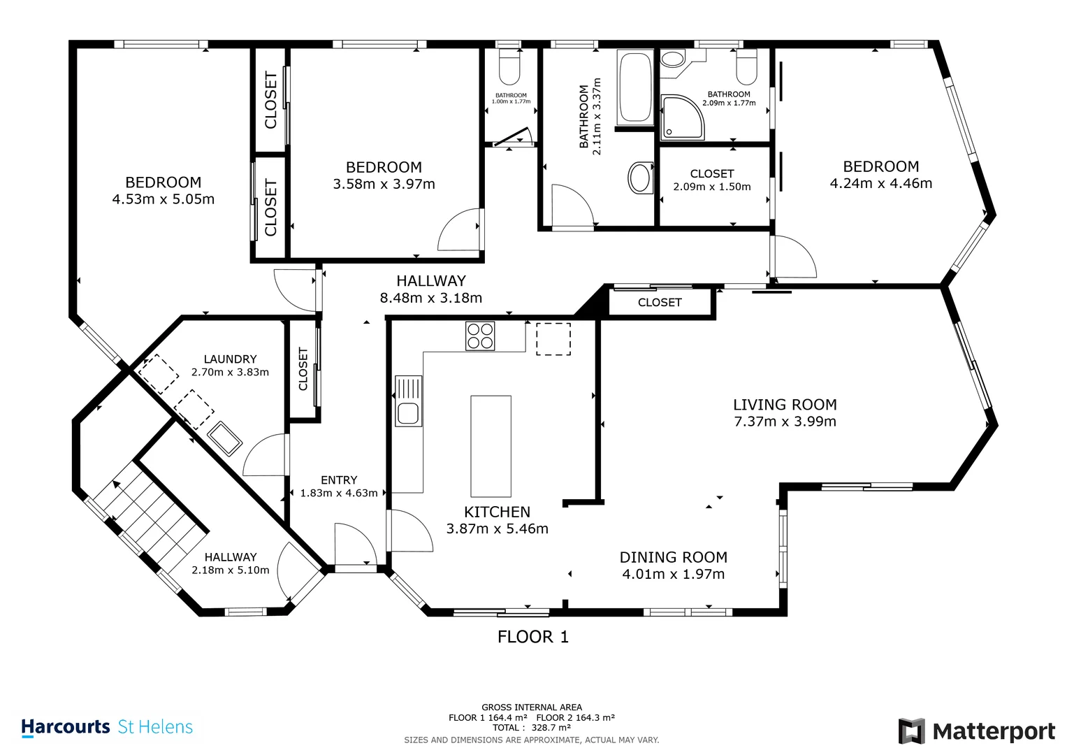
Description: St Helens on the Bay is a standout choice for buyers seeking both lifestyle and flexibility. Featuring six bedrooms, four bathrooms, and a smart dual living design, this property offers an ideal blend of space, practicality, and low maintenance coastal living. Designed for ease, it allows for two entirely separate three bedroom homes-each with its own private entrance, making it perfect for extended families, guests, or those seeking an additional income stream. This low maintenance home is fully fenced, and has attractive established gardens ensuring that while you stay busy, you won't be tied down with constant upkeep as there are no lawns to mow, leaving you plenty of time to sit back and enjoy the views of Georges Bay. Add to that a versatile, wide driveway which is a life saver when turning and reversing boats and caravans. Set over two storeys, the first floor residence offers sweeping views of the bay and ocean, an expansive deck for soaking in the fresh sea air, and a light filled living space. Both homes include a full size kitchen with abundant storage and dishwasher, well sized bedrooms with abundant storage, and electric heating throughout for year round comfort. A full sized laundry in each residence adds to the convenience, ensuring both living spaces are completely self sufficient & independent of each other. Boating and fishing go hand in hand with the exceptional boat shed and garage, featuring a 4.6m high roller door and a fifth toilet for added practicality. There's ample parking for boats, caravans, and motorhomes, and you'll be just moments from all the popular boat ramps, including Stieglitz and Burns Bay. Whether you prefer fishing, kayaking, or a morning swim, you'll find it all within walking distance. The location places you right in the heart of the East Coast's most sought after attractions, including Peron Dunes, St Helens Mountain Bike Trails, O'Connors Beach Park Run, the Bay of Fires, and Beer Barrel Beach-perfect for those who love the coast. Currently this property operates as a highly successful holiday rental with a stellar reputation and consistent income. With multiple awards under its belt, including being a finalist in the Tasmanian Tourism Awards, placement on the 2024 Gold List (Star Rating Australia), and strong year on year bookings exceeding $58,000 per annum, this is an investment with proven results. Forward bookings remain strong, ensuring a seamless transition for new owners looking to continue its success. Best of all, the sale includes just about everything-from furniture and outdoor settings to BBQs, quality carpets, window furnishings, and more. You'll also receive the established brand assets, including the website, social media profiles, booking platforms and all professional images, meaning you can hit the ground running from day one. There is abundant scope to grow the business even further by expanding exposure even further. With a base rate of $200 - $235 per night for two guests (with scope for increase to align with market demand), this is a rare opportunity to secure a flexible, income generating property. Whether you're after a home that pays for itself, a pure investment, or a dual living setup for family and guests, this property delivers. Viewings available between guest stays-contact us today to arrange your inspection! PROPERTY INFORMATION: Built: 2006 Land Size: 660m2 Building Size: 352m2 + deck Zoning: General Residential Stieglitz is one of the favourite holiday areas of St Helens. With all homes very close to the foreshore, life in Stieglitz is about fishing, walking and riding! There is an eclectic mix of original shacks as well as high end modern homes. The vibe is relaxed and friendly. Just 7 minutes from the centre of St Helens, services such as hospital, school, government services, supermarkets etc are all very close by. There is also a mini mart in Stieglitz offering car wash, fuel, takeaways and groceries. Harcourts St Helens has no reason to doubt the accuracy of the information in this document which has been sourced from means which are considered reliable, however we cannot guarantee accuracy. Prospective purchasers are advised to carry out their own investigations.
Location
Address
6 Chimney Heights Road, Stieglitz TAS 7216
City
Stieglitz
Features and Finishes
None
Legal Notice
Our comprehensive database is populated by our meticulous research and analysis of public data. MirrorRealEstate strives for accuracy and we make every effort to verify the information. However, MirrorRealEstate is not liable for the use or misuse of the site's information. The information displayed on MirrorRealEstate.com is for reference only.