6 John Street, Box Hill VIC 3128
Property Details
1
1
Apartment / Unit / Flat
Description
Property Details: • Type: Apartment / Unit / Flat
• Bedrooms: 1 • Bathrooms: 1
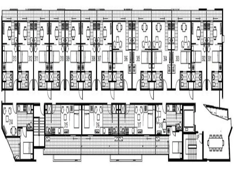
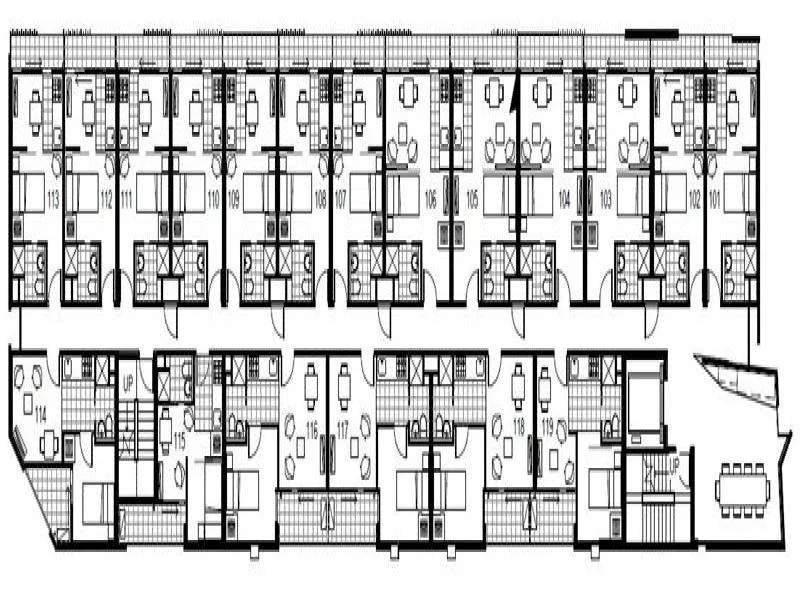
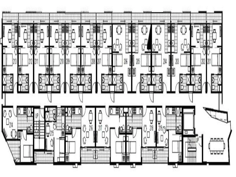
Description: The building is a 1.5km walk to Box Hill Institute, 600m walk to Box Hill Central and a 1km walk to Box Hill TAFE. Swinburne University - 25 minute journey from Box Hill train station on the Belgrave/Lilydale line. A 49 minute journey via tram 109 at Box Hill Central and tram 16. Deakin University - 16 minute bus number 732 a 21 minute bus 768 from Harrow St. A 22 minute bus 767 and 27 minute bus 201 from Box Hill train station. This boutique property built in 2010 and opened in 2011, features 65 Apartments, consisting of: 65 X One Bedroom Apartments These furnished apartments come with intercom security entrance, a single bed, full kitchen with gas cooking, electric heating, microwave and bar fridge, dishwasher, stylish bathroom, meals table and chair. All apartments feature a private balcony or, courtyard. This building also includes a communal laundry at the rear of the ground floor area (coin-operated). There is secure, off-street parking, leased separately, at an additional cost (subject to availability). Note: This building is regulated to ONE full-time or part-time tertiary student per apartment only. Gas is included in the rent. Electricity and water usage is not included in the rent. All apartments have access to internet usage at very affordable rates. Walking distance to bus, train and trams and in close proximity to Box Hill Central Shopping Centre. Only a short trip into Melbourne City centre. These apartments lease quickly so if you wish to submit your application, we suggest you do so on-line at www.sha.com.au or at one of our offices immediately. Please apply on https://sha.com.au/available-buildings/. Sorry no pets allowed.
Location
Address
6 John Street, Box Hill VIC 3128
City
Box Hill
Features and Finishes
None
Legal Notice
Our comprehensive database is populated by our meticulous research and analysis of public data. MirrorRealEstate strives for accuracy and we make every effort to verify the information. However, MirrorRealEstate is not liable for the use or misuse of the site's information. The information displayed on MirrorRealEstate.com is for reference only.