6 Queen Street, Cleator Moor, CA25 5BH
Property Details
2
Terraced
Description
Property Details: • Type: Terraced • Tenure: N/A • Floor Area: N/A
Key Features: • To be offered on Thursday 27 February • Two bedroom mid terrace house • Enclosed rear yard • In need of modernisation • Vacant
Location: • Nearest Station: N/A • Distance to Station: N/A
Agent Information: • Address: 33 Margaret Street London W1G 0JD
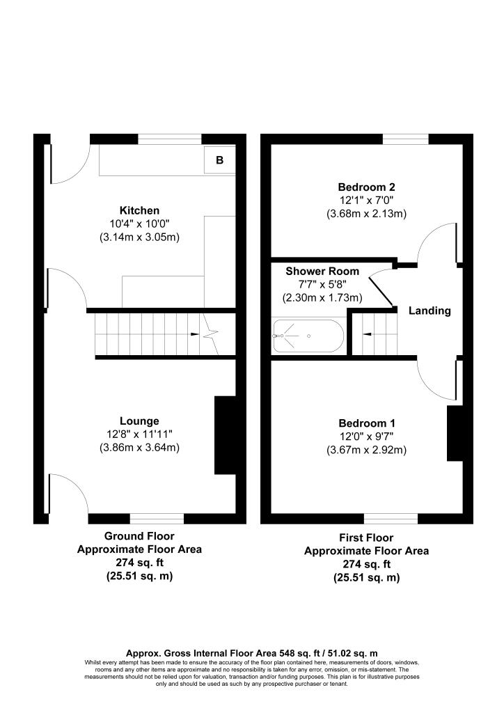
Full Description: StrapLineAuction Sale - 26/02/2025A two bedroom mid terrace house, benefitting from an enclosed rear yard, in need of modernisation, well located for Cleator Moor town centre amenities. Vacant.DescriptionA two bedroom mid terrace house.Externally the property benefits from an enclosed rear yard.In need of modernisation.Vacant.LocationCleator Moor is a town in the county of Cumbria.Located on Queen Street, accessed off Montreal Street. Amenities are available locally on Cleator Moor High Street and Jacktrees Road.A broad range of recreational amenities are available in the nearby countryside.TransportCorkickle - northern.AccommodationGround Floor - Reception Room, Kitchen.First Floor - Two Bedrooms, Bathroom/WC.
Location
Address
6 Queen Street, Cleator Moor, CA25 5BH
City
Cleator Moor
Features and Finishes
To be offered on Thursday 27 February, Two bedroom mid terrace house, Enclosed rear yard, In need of modernisation, Vacant
Legal Notice
Our comprehensive database is populated by our meticulous research and analysis of public data. MirrorRealEstate strives for accuracy and we make every effort to verify the information. However, MirrorRealEstate is not liable for the use or misuse of the site's information. The information displayed on MirrorRealEstate.com is for reference only.