605 Regency Road, Broadview SA 5083
Property Details
3
1
House
Description
Property Details: • Type: House
• Bedrooms: 3 • Bathrooms: 1
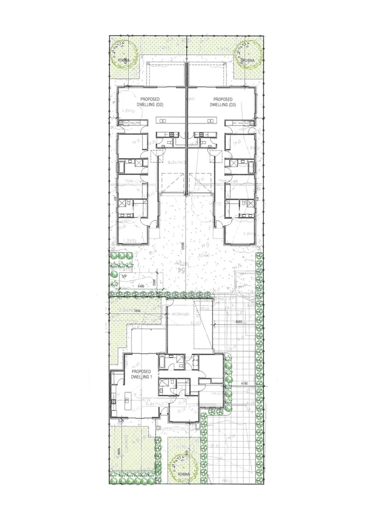
Description: Planning Consent Secured Unlock the Potential Opportunities like this don't wait-and neither should you. 605 Regency Road, Broadview is hitting the market with planning consent already secured for three dwellings, offering a rare chance to secure a development site where the groundwork has already been done. In a market where delays cost money and approved sites are tightly held, this is your opportunity to step in, take control, and deliver. Whether you're building to sell or hold, the combination of location, scale, and planning progress makes this a standout acquisition. Set along a major arterial corridor with direct CBD access, the fundamentals are already in place for strong end-value appeal. Demand for quality, low-maintenance housing remains high-and sites like this are increasingly contested. Make no mistake-this will be sold. Act decisively, come prepared, and be ready to secure a project with immediate potential. Don't miss your chance. Act fast. Opportunities with approvals in place don't sit for long. Enquire today to secure this high-potential development site. - Site area: 1100sqm (approx.) - Planning Consent for 3 x single storey houses - Proposed dwellings: 3 bedrooms, 2 bathrooms, garages - Inner northern metro area approx 6-7 kms to the Adelaide CBD - Excellent access to local shops, schools, transport and lifestyle amenities - Close to Sefton Plaza, Northpark Shopping Centre, with (Coles, Woolworths) food, retail, etc. - Nearby Private Schools: St Martin's Catholic Primary, Rosary School, St Andrew's, Our Lady of The Sacred Heart (OLSH) College (girls secondary) - Nearby Public Schools: Roma Mitchell Secondary College, Valley View Secondary, Prospect North Primary, Nailsworth Primary (please refer to local map) Don't miss this amazing opportunity.! FOR DEFINITE SALE....! There will be no open inspections conducted. Selling as land value...! For more information call: Larry Finis on 0400 600 422 or Raffaele Spano on 0427 305 089 Neither agent or vendor accept any liability for any error or omission relating to this property. We apologize for any inconvenience this may cause however, we would like to thank you for your cooperation. RLA 288 738
Location
Address
605 Regency Road, Broadview SA 5083
City
Broadview
Features and Finishes
None
Legal Notice
Our comprehensive database is populated by our meticulous research and analysis of public data. MirrorRealEstate strives for accuracy and we make every effort to verify the information. However, MirrorRealEstate is not liable for the use or misuse of the site's information. The information displayed on MirrorRealEstate.com is for reference only.