60A Railway Avenue, Middle Swan WA 6056
Property Details
4
2
House
Description
Property Details: • Type: House
• Bedrooms: 4 • Bathrooms: 2
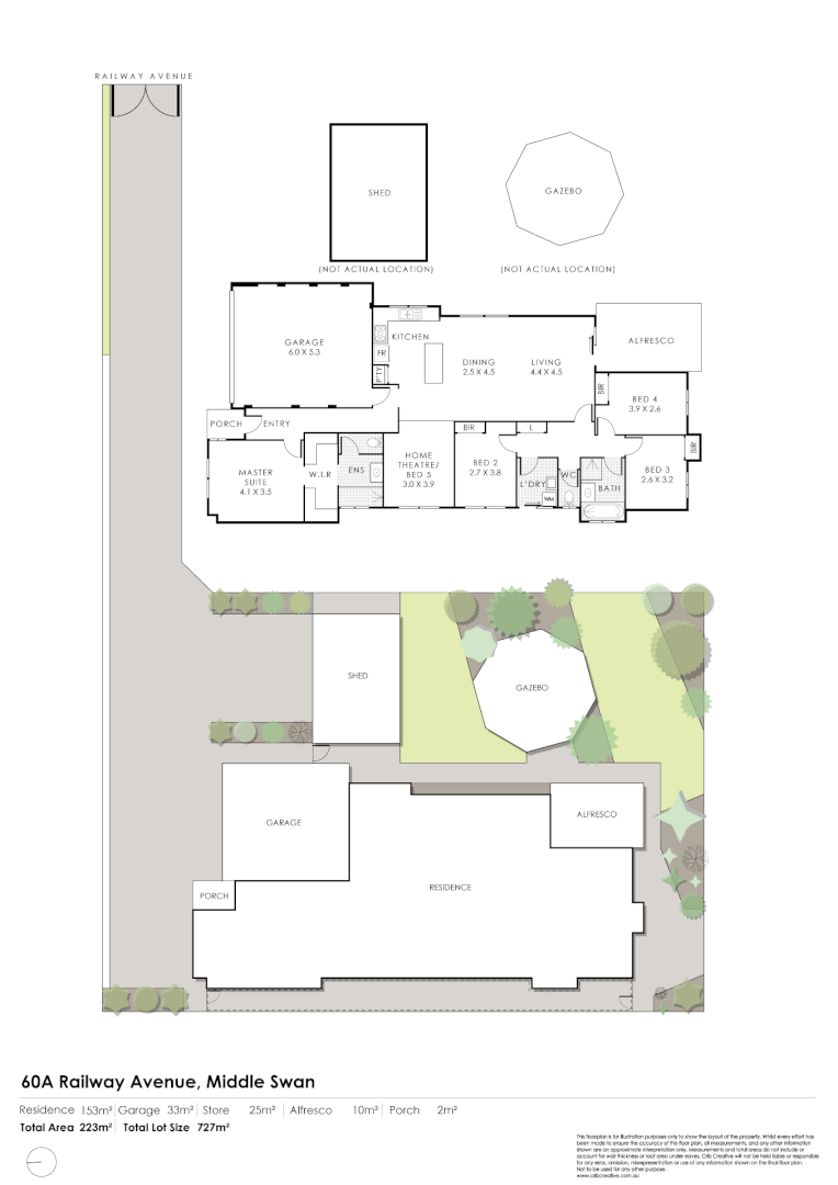
Description: Please join us for the GRAND OPENING of this gorgeous home this Sunday, 26th April from 12PM to 12:40PM. There will be an onsite coffee van handing out complementary hot drinks to everyone who attends. We look forward to seeing you there. Passing through the gates and along the private driveway, there's an immediate sense of separation from the outside World. Built in 2016, the home reveals itself gradually, framed by established gardens creating a calm and welcoming approach. One standout feature is the incredible amount of parking on offeran expansive driveway comfortably accommodates at least five vehicles, making it perfect for those with a caravan, boat, trailer or multiple cars, all while still enjoying the benefit of unobstructed access to the double garage. It's a rare and highly practical advantage that adds genuine flexibility to everyday living. Complementing this is a spacious garden shed with access from the front of the property, ideal for storing bikes, scooters, tools and the equipment needed to maintain the beautifully established gardens. Altogether, it's a setting that feels both secure and thoughtfully designed, offering a level of privacy and functionality that is increasingly hard to find and creating a home that is as practical as it is welcoming. Step inside and the feeling continues, with a long central hallway drawing you effortlessly into the heart of the home. The interiors are light-filled and beautifully neutral, designed to adapt to any style while maintaining a sense of warmth and cohesion throughout. The master suite is a true retreat, positioned privately at the front, bathed in natural light and complete with dual walk-in robes and a stunning ensuite that feels both generous and refined. The kitchen is the natural gathering point, practical yet stylish, with stone benchtops, quality appliances and a picture window that turns even the simplest moments into something special as you look out over the lush, manicured gardens. Flowing seamlessly into the open-plan living and meals area and complemented by a versatile theatre room that can transform to suit your lifestyle, the home offers flexibility for families, entertainers and professionals alike. Three additional bedrooms plus the family bathroom are tucked away in a separate zone of the home so everyone can have privacy. And then there is the backyard!!!! Undoubtedly the soul of this property, it is a space that will stay with you long after you've left. This is not just an outdoor area; it's an experience. A private oasis where time slows down, where mornings begin with sunlight spilling across manicured buffalo lawns, and evenings are spent under the soft glow of the gazebo, surrounded by the gentle rustle of tropical gardens. The centrepiece gazebo is nothing short of breathtakinggrand in scale, beautifully finished and designed for unforgettable gatherings, whether it's long lunches with friends or celebrations that stretch into the night. Every corner of the garden has been thoughtfully curated, from the limestone-edged lawns to the tucked-away secondary entertaining space that invites quiet moments and peaceful retreat, to even the cat enclosure so even your furry friends are protected. It's a backyard that doesn't just complement the homeit elevates it, offering a lifestyle that feels like a permanent escape. Positioned in one of Middle Swan's most convenient and evolving pockets, the home combines serenity with accessibility. You're just moments from everyday essentials, quality schooling including St Brigid's Primary School, La Salle and Swan Christian Secondary schools, local parks and public transport links, while still enjoying the space and quiet that this location provides. And perhaps most importantly, you are only a short drive from the World-renowned Swan Valleya destination synonymous with fine wine, gourmet experiences and weekend indulgence. It's a location that offers balance: family-friendly, well-connected and rich in lifestyle opportunity, making this not just a place to live, but a place to truly enjoy life. Here are just some of the many features this fantastic home has to offer; FRONT OF PROPERTY -Cul de sac location in a coveted location of Middle Swan -Set amongst other quality homes -Originally built in 2016 -Rear house on a block of two, titled survey strata (no strata fees) -Double gates at the front of the long driveway allow additional privacy and security -A long paved driveway leads up to the impressive home -Lush buffalo lawn and a rockery interspersed with potted plants line the driveway -The rear section of the driveway allows for at least five vehicles to be parked (excluding the garage parking) so great for people who own caravans, boats, trailers or numerous cars -Lush tropical inspired gardens frame the front of home -A large garden shed has access from the driveway for additional storage -A side gate allows access to the backyard from the front of the home -There is a double garage with a sectional roller door adjacent to the home -The home is rendered a light grey colour with dark trimmings and a charcoal-coloured tiled roof -There is a front portico on the home to welcome guests INSIDE THE HOME -The home has a single wooden front door plus a security screen door -There is a long central entrance hall that opens to the main living zone of the home -The main bedroom is located on the right-hand side of this central hallway -The main bedroom is flooded with natural light and looks out over the front garden area -This room has charcoal-coloured carpets and pale grey vertical blinds -The room features dual walk-in robes with shelf and rail storage -The stunning, light filled ensuite has a generous walk-in shower, a vanity plus a separate toilet -The main bedroom is separate from the rest of the home creating a tranquil escape from the family if desired -There is a shopper's entrance door from the double garage st
Location
Address
60A Railway Avenue, Middle Swan WA 6056
City
Middle Swan
Legal Notice
Our comprehensive database is populated by our meticulous research and analysis of public data. MirrorRealEstate strives for accuracy and we make every effort to verify the information. However, MirrorRealEstate is not liable for the use or misuse of the site's information. The information displayed on MirrorRealEstate.com is for reference only.