61 Central Park Walk, Cheltenham VIC 3192
Property Details
2
2
Townhouse
Description
Property Details: • Type: Townhouse
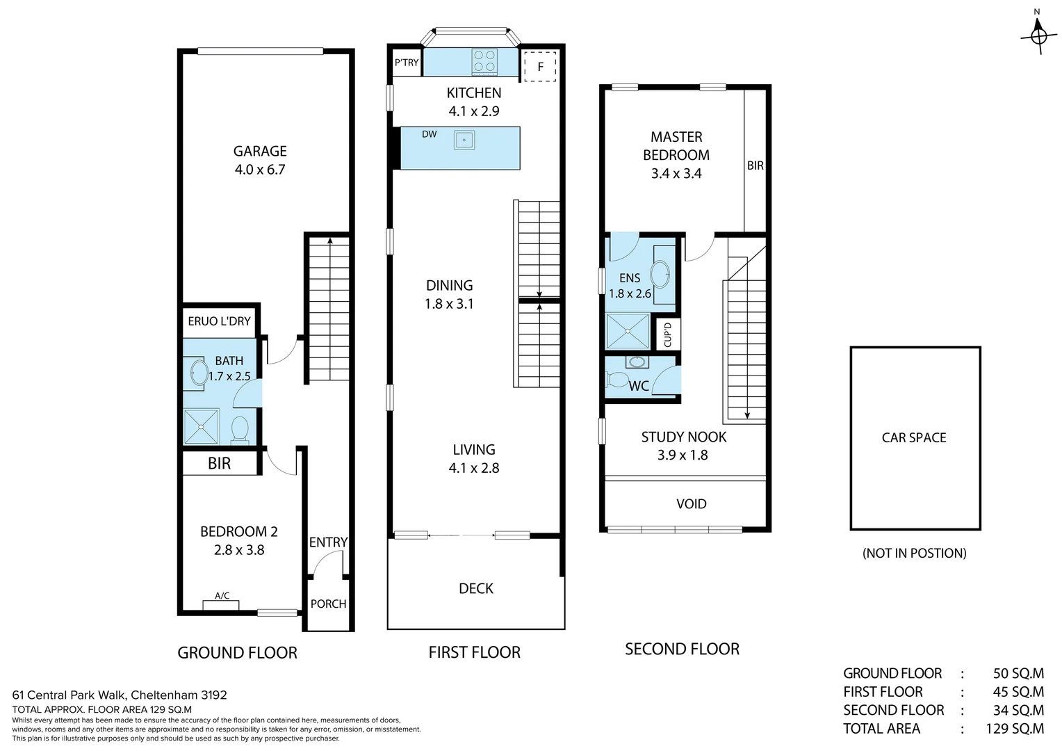
• Bedrooms: 2 • Bathrooms: 2
Description: In the heart of the Cheltenham Secondary College Zone, with local shopping just around the corner and Southland and Waves pool and gym in easy reach, you will love calling this area your home * Two bedroom & naturally-lit mezzanine study space * Two bathroom (with a bathroom beside each bedroom) * Central garden space * Oversized rear garaging with room to store and an additional adjacent carspace to provide vital visitor or overflow parking. * Heating and air-conditioning for each level * Expansive living-dining flowing out beneath a vaulted roofline to a full-width balcony * Streamlined European appliance kitchen with CaesarStone benchtops and the added option of hard wearing high-end Oak floors.
Location
Address
61 Central Park Walk, Cheltenham VIC 3192
City
Cheltenham
Features and Finishes
None
Legal Notice
Our comprehensive database is populated by our meticulous research and analysis of public data. MirrorRealEstate strives for accuracy and we make every effort to verify the information. However, MirrorRealEstate is not liable for the use or misuse of the site's information. The information displayed on MirrorRealEstate.com is for reference only.